Vesitorninkatu 6
Pöytäalho
,
Järvenpää
391 000 €
Velaton hinta
391 000 €
Myyntihinta
137
m2
Asuinpinta-ala
Omakotitalo
Kohteen tyyppi
1998
Rakennusvuosi
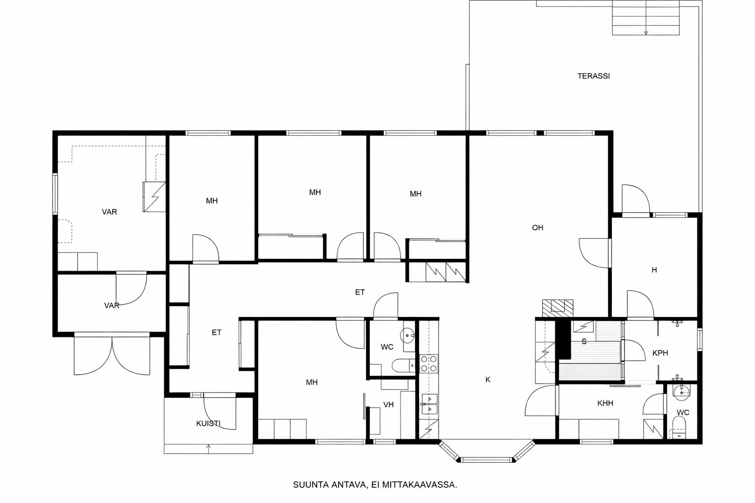
5-6h, k, ph, s, khh, pkh, 2*wc, vh, var, at, ak, 2*ulkovar.
Viehättävä omakotitalo, joka tarjoaa tilaa ja mukavuutta koko perheelle. Vuonna 1998 valmistunut yksitasoinen talo sijaitsee omalla, hyvin hoidetulla ja vehreällä tontilla.
Kodista löytyy neljä makuuhuonetta. Kodinhoitohuone ja vaatehuone tarjoavat käytännöllisyyttä ja tilaa arjen tarpeisiin. Modernista keittiöstä löytyy runsaasti kaappitilaa ja työskentelytilaa. Olohuoneen tunnelmaa lisää kaunis takka. Lisäksi talossa on puulämmitteinen sauna ja pukuhuone, josta käynti terassille. Talon yhteydessä on autotalli. Piha tarjoaa aurinkoisen ja suojaisan ympäristön, jossa on mukava viettää aikaa. Pihapiirissä on myös kaksi ulkovarastoa, jossa reilusti säilytystilaa. Terassiin upotettu ulkoporeallas kutsuu rentoutumaan.
Sijainti on erinomainen: lähikaupat, kuten K-Citymarket ja Tokmanni, ovat kävelyetäisyydellä, ja Järvenpään keskustan kattavat palvelut ovat vain noin kilometrin päässä. Alueella on myös hyvät julkiset liikenneyhteydet, sillä linja-autopysäkki ja juna-asema sijaitsevat lähellä. Lapsiperheille alue tarjoaa erinomaiset koulut ja päiväkodit.
Tämä koti yhdistää tilavat sisätilat, käytännölliset lisäratkaisut ja loistavan sijainnin. Tervetuloa tutustumaan!
Suosimme yksityisnäyttöjä, joten olethan rohkeasti yhteydessä ja varaat oman näyttöajan asuntoon.
Kiinnostako tämä kohde?
Ota yhteyttä tai jätä viesti

Merike Martikainen
Kiinteistönvälittäjä, LKV, LVV, KiAT
040 662 8525
merike.martikainen@mandana.fi
Lähetä viesti
040 662 8525
{"id":{"fi":{"key":"Kohteen id","value":"c9afb10c-79ac-4081-a8ff-485a9ce4d169","category":"Kohteen tiedot"}},"area":{"fi":{"key":"Asuinpinta-ala","value":"137 m²","category":"Kohteen tiedot"}},"city":{"fi":{"key":"Kaupunki","value":"Järvenpää","category":"Kohteen tiedot"}},"debt":{"fi":{"key":"Velkaosuus","value":null,"category":"Kohteen tiedot"}},"gate":{"fi":{"key":"Rappu","value":null,"category":"Kohteen tiedot"}},"rent":{"fi":{"key":"Vuokra","value":null,"category":"Kohteen tiedot"}},"type":{"fi":{"key":"Tyyppi","value":"Kiinteistö","category":"Kohteen tiedot"}},"view":{"fi":{"key":"Näkymät huoneistosta","value":null,"category":"Kohteen tiedot"}},"yard":{"fi":{"key":"Piha","value":"Huolella hoidettu, aurinkoinen ja vehreä piha luo viihtyisän ja suojaisan ympäristön.","category":"Kohteen tiedot"}},"beach":{"fi":{"key":"Ranta","value":null,"category":"Kohteen tiedot"}},"floor":{"fi":{"key":"Kerrosnumero","value":"1","category":"Kohteen tiedot"}},"links":{"fi":{"key":"Linkit","value":null,"category":"Kohteen tiedot"}},"sauna":{"fi":{"key":"Sauna","value":"Kyllä","category":"Kohteen tiedot"}},"images":[],"roadTo":{"fi":{"key":"Tie perille","value":"Kyllä","category":"Kohteen tiedot"}},"status":{"fi":{"key":"Tila","value":"Myynnissä","category":"Kohteen tiedot"}},"address":{"fi":{"key":"Katuosoite","value":"Vesitorninkatu 6","category":"Kohteen tiedot"}},"country":{"fi":{"key":"Maa","value":"Suomi","category":"Kohteen tiedot"}},"lotArea":{"fi":{"key":"Tontin kokonaispinta-ala","value":"1 160 m²","category":"Kohteen tiedot"}},"lotInfo":{"fi":{"key":"Lisätietoja tontista","value":null,"category":"Kohteen tiedot"}},"lotType":{"fi":{"key":"Tontin tyyppi","value":"Tasamaatontti","category":"Kohteen tiedot"}},"parking":{"fi":{"key":"Pysäköinti","value":"Ilmainen pysäköinti","category":"Kohteen tiedot"}},"realtor":{"id":5452,"tel":null,"name":"Merike Martikainen","email":null,"avatar":null,"jobTitle":null,"primaryCompany":{"id":null,"tel":null,"logo":null,"name":null,"email":null,"address":null,"businessId":null,"postNumber":null,"postOffice":null}},"release":{"fi":{"key":"Kohde vapautuu","value":"Heti","category":"Kohteen tiedot"}},"schools":{"fi":{"key":"Koulut","value":"Peruskoulu: Kartanon koulu n. 600 m. Kinnarin koulu n. 970 m. Mankalan koulu n. 1km. \nLukio: Järvenpään lukio n. 1 km. ","category":"Kohteen tiedot"}},"terrace":{"fi":{"key":"Terassi","value":"Kyllä","category":"Kohteen tiedot"}},"wcCount":{"fi":{"key":"WC-tilojen lukumäärä","value":"2","category":"Kohteen tiedot"}},"askPrice":{"fi":{"key":"Myyntihinta","value":"391 000 €","category":"Kohteen tiedot"}},"freeText":{"fi":{"key":null,"value":null,"category":null}},"inIsland":{"fi":{"key":"Kohde sijaitsee saaressa","value":null,"category":"Kohteen tiedot"}},"includes":{"fi":{"key":"Taloyhtiöön / Kiinteistöön kuuluu","value":null,"category":"Kohteen tiedot"}},"province":{"fi":{"key":"Maakunta","value":"Uusimaa","category":"Kohteen tiedot"}},"roadType":{"fi":{"key":"Tien tyyppi","value":"Asfaltti","category":"Kohteen tiedot"}},"roofType":{"fi":{"key":"Kattotyyppi","value":"Aumakatto","category":"Kohteen tiedot"}},"services":{"fi":{"key":"Palvelut","value":"Keskustan kattavat palvelut n. 1 km. K-Citymarket n. 300 m, Tokmanni n. 250 m. Lidl n. 800 m. \nUimahalli ja liikuntahalli n. 700 m. Kirjasto n. 760 m. Neuvola n. 2 km. ","category":"Kohteen tiedot"}},"videoUrl":{"fi":{"key":"Videon linkki","value":null,"category":"Kohteen tiedot"}},"areaBasis":{"fi":{"key":"Pinta-alan peruste","value":null,"category":"Kohteen tiedot"}},"beachInfo":{"fi":{"key":"Lisätietoja rannasta","value":null,"category":"Kohteen tiedot"}},"beachType":{"fi":{"key":"Rannan tyyppi","value":null,"category":"Kohteen tiedot"}},"condition":{"fi":{"key":"Kunto","value":"Hyvä","category":"Kohteen tiedot"}},"fireplace":{"fi":{"key":"Takkatiedot","value":"Takka","category":"Kohteen tiedot"}},"furnished":{"fi":{"key":"Kohde myydään kalustettuna","value":"Ei","category":"Kohteen tiedot"}},"localInfo":{"fi":{"key":"Lähipalvelut","value":null,"category":"Kohteen tiedot"}},"lotNumber":{"fi":{"key":"Tontin numero / Rnr","value":null,"category":"Kohteen tiedot"}},"otherArea":{"fi":{"key":"Muiden tilojen pinta-ala","value":"34 m²","category":"Kohteen tiedot"}},"roadTolls":{"fi":{"key":"Tiemaksut","value":null,"category":"Kohteen tiedot"}},"roomCount":{"fi":{"key":"Huoneluku","value":5,"category":"Kohteen tiedot"}},"sewerInfo":{"fi":{"key":"Lisätietoja viemäristä","value":null,"category":"Kohteen tiedot"}},"stoveType":{"fi":{"key":"Liesi","value":"Induktioliesi","category":"Kohteen tiedot"}},"chargeInfo":{"fi":{"key":"Lisätietoja maksuista","value":"Vesi noin 10 €/kk/hlö. ","category":"Kohteen tiedot"}},"floorCount":{"fi":{"key":"Kerroksia","value":"1","category":"Kohteen tiedot"}},"forestArea":{"fi":{"key":"Metsän pinta-ala","value":null,"category":"Kohteen tiedot"}},"freeOnText":{"fi":{"key":"Lisätietoja vapautumisesta","value":null,"category":"Kohteen tiedot"}},"hasBalcony":{"fi":{"key":"Parveke","value":"Ei","category":"Kohteen tiedot"}},"hasCableTv":{"fi":{"key":"Kohteessa on kaapeli-tv","value":"Ei","category":"Kohteen tiedot"}},"identifier":{"fi":{"key":"Kohdenumero","value":80477524,"category":"Kohteen tiedot"}},"landRenter":{"fi":{"key":"Maanvuokraaja","value":null,"category":"Kohteen tiedot"}},"postalCode":{"fi":{"key":"Postinumero","value":"04410","category":"Kohteen tiedot"}},"subleasing":{"fi":{"key":"Jälleenvuokraus","value":null,"category":"Kohteen tiedot"}},"zoningInfo":{"fi":{"key":"Lisätietoja kaavoituksesta","value":null,"category":"Kohteen tiedot"}},"balconyArea":{"fi":{"key":"Parvekkeen (tai parvekkeiden) kokonaispinta-ala","value":null,"category":"Kohteen tiedot"}},"bodyOfWater":{"fi":{"key":"Vesistön nimi","value":null,"category":"Kohteen tiedot"}},"energyClass":{"fi":{"key":"Energialuokka","value":"D2018","category":"Kohteen tiedot"}},"garageCount":{"fi":{"key":"Autotalleja","value":null,"category":"Kohteen tiedot"}},"listingType":{"fi":{"key":"Kohteen tyyppi","value":"Omakotitalo","category":"Kohteen tiedot"}},"otherCharge":{"fi":{"key":"Muu vastike","value":null,"category":"Kohteen tiedot"}},"overallArea":{"fi":{"key":"Kokonaispinta-ala","value":"171 m²","category":"Kohteen tiedot"}},"parkingInfo":{"fi":{"key":"Lisätietoja paikoituksesta alueella (esim. asukaspysäköinti)","value":null,"category":"Kohteen tiedot"}},"petsAllowed":{"fi":{"key":"Lemmikit sallittu","value":null,"category":"Kohteen tiedot"}},"propertyTax":{"fi":{"key":"Kiinteistövero","value":"1 028 € / vuosi","category":"Kohteen tiedot"}},"publishDate":{"fi":{"key":"Julkaisupäivä","value":"13.01.2026","category":"Kohteen tiedot"}},"realtorName":"Merike Martikainen","salesMethod":{"fi":{"key":"Kauppatapa","value":"Perinteinen","category":"Kohteen tiedot"}},"saunaCharge":{"fi":{"key":"Saunamaksu","value":null,"category":"Kohteen tiedot"}},"terraceInfo":{"fi":{"key":"Lisätietoja terassista","value":null,"category":"Kohteen tiedot"}},"waterCharge":{"fi":{"key":"Vesimaksu","value":null,"category":"Kohteen tiedot"}},"wcEquipment":{"fi":{"key":"Erillinen WC:n varusteiden lisätiedot","value":null,"category":"Kohteen tiedot"}},"windowTypes":{"fi":{"key":"Ikkunat","value":null,"category":"Kohteen tiedot"}},"__IMTINDEX__":null,"areaMoreInfo":{"fi":{"key":"Lisätietoja pinta-alasta","value":"Talon kokonaisala 171 m² (asunto 137 m², autotalli 34 m²). \nKäyttöullakko 39 m². \nTalousrakennus 14 m².\nVarasto 10,46 m². ","category":"Kohteen tiedot"}},"balconyTypes":{"fi":{"key":"Parvekkeen tyyppi","value":null,"category":"Kohteen tiedot"}},"bedroomCount":{"fi":{"key":"Makuuhuoneiden lukumäärä","value":4,"category":"Kohteen tiedot"}},"carPortCount":{"fi":{"key":"Autokatokset","value":null,"category":"Kohteen tiedot"}},"completeYear":{"fi":{"key":"Valmistumisvuosi","value":"1998","category":"Kohteen tiedot"}},"dealIncludes":{"fi":{"key":"Kauppaan kuuluu","value":"Ilmalämpöpumput 3 kpl (eteinen, autotalli sekä olohuone). Ulkoporeallas.","category":"Kohteen tiedot"}},"districtFree":{"fi":{"key":"Kaupunginosa/kylä","value":"Pöytäalho","category":"Kohteen tiedot"}},"kindergarten":{"fi":{"key":"Päiväkoti","value":"Isokydön päiväkoti, ryhmäperhepäivähoito Pikku-Kytö n. 400 m. Lampipuiston päiväkoti n. 450 m. \nPuistolan päiväkoti n. 640 m. ","category":"Kohteen tiedot"}},"landCadastre":{"fi":{"key":"Maakatastri","value":null,"category":"Kohteen tiedot"}},"landYearRent":{"fi":{"key":"Tontin vuosivuokra","value":null,"category":"Kohteen tiedot"}},"lotOwnership":{"fi":{"key":"Tontin omistus","value":"Oma","category":"Kohteen tiedot"}},"lotSalesType":{"fi":{"key":"Kohteen myyntityyppi","value":"Koko tontti","category":"Kohteen tiedot"}},"municipality":{"fi":{"key":"Kunta/kaupunki","value":"Järvenpää","category":"Kohteen tiedot"}},"ownBeachLine":{"fi":{"key":"Omaa rantaa","value":null,"category":"Kohteen tiedot"}},"parkingSpace":{"fi":{"key":"Huoneistoon kuuluu yhtiöjärjestyksen mukaan autopaikka","value":null,"category":"Kohteen tiedot"}},"productGroup":{"fi":{"key":"Tuoteryhmä internetissä","value":"Asunnot","category":"Kohteen tiedot"}},"propertyName":{"fi":{"key":"Kiinteistön nimi","value":null,"category":"Kohteen tiedot"}},"propertyType":{"fi":{"key":"Kiinteistön tyyppi","value":"Tontti","category":"Kohteen tiedot"}},"restrictions":{"fi":{"key":"Muut käyttö-/luovutusrajoitukset (esim. vuokrausrajoitus, arava, hitasehto)","value":null,"category":"Kohteen tiedot"}},"shareNumbers":{"fi":{"key":"Osakenumerot","value":null,"category":"Kohteen tiedot"}},"soldAsRented":{"fi":{"key":"Kohde myydään vuokrattuna","value":"Ei","category":"Kohteen tiedot"}},"swimmingPool":{"fi":{"key":"Uima-allas","value":"Kohteessa uima-allas: Ei","category":"Kohteen tiedot"}},"zoningStatus":{"fi":{"key":"Kaavoitus","value":"Asemakaava","category":"Kohteen tiedot"}},"__IMTLENGTH__":null,"conditionInfo":{"fi":{"key":"Lisätietoja kunnosta","value":null,"category":"Kohteen tiedot"}},"debtFreePrice":{"fi":{"key":"Velaton hinta","value":"391 000 €","category":"Kohteen tiedot"}},"freeTextTitle":{"fi":{"key":"Esittelytekstin otsikko","value":null,"category":"Kohteen tiedot"}},"fundingCharge":{"fi":{"key":"Rahoitusvastike","value":null,"category":"Kohteen tiedot"}},"heatingCharge":{"fi":{"key":"Lämmitys (€/kk)","value":null,"category":"Kohteen tiedot"}},"heatingSystem":{"fi":{"key":"Lämmitysjärjestelmä","value":"Sähkö, ilmalämpöpumppu ja puu","category":"Kohteen tiedot"}},"housingTenure":{"fi":{"key":"Asumismuoto","value":null,"category":"Kohteen tiedot"}},"ownershipType":{"fi":{"key":"Omistusmuoto","value":null,"category":"Kohteen tiedot"}},"parkingCharge":{"fi":{"key":"Autopaikkamaksu","value":null,"category":"Kohteen tiedot"}},"presentations":["{\"id\":\"ebf22474-7709-44a0-bcc2-615166df4278\",\"date\":{\"fi\":\"18.01.2026\"},\"startTime\":{\"fi\":\"11.00\"},\"endTime\":{\"fi\":\"11.45\"},\"presenter\":{\"id\":5452,\"name\":\"Merike Martikainen\",\"email\":\"merike.martikainen@mandana.fi\",\"tel\":\"040 662 8525\"}}","{\"id\":\"548d415f-9112-4cda-8068-a53fcbfc8af1\",\"date\":{\"fi\":\"01.02.2026\"},\"startTime\":{\"fi\":\"13.30\"},\"endTime\":{\"fi\":\"14.00\"},\"presenter\":{\"id\":5452,\"name\":\"Merike Martikainen\",\"email\":\"merike.martikainen@mandana.fi\",\"tel\":\"040 662 8525\"}}"],"roadCondition":{"fi":{"key":"Tien kunto","value":"Hyvä","category":"Kohteen tiedot"}},"roofCondition":{"fi":{"key":"Katon kunto","value":null,"category":"Kohteen tiedot"}},"runningNumber":{"fi":{"key":"Toimeksiantonumero","value":"1012","category":"Kohteen tiedot"}},"waterPipeInfo":{"fi":{"key":"Lisätietoja vesijohdosta","value":null,"category":"Kohteen tiedot"}},"wcDescription":{"fi":{"key":"WC:n kuvaus","value":"WC 1: Lattialämmitys, peilikaappi, wc-istuin, bidee. \nWC 2: Lattialämmitys, peilikaappi, kaappi, allaskaappi, wc-istuin, bidee.\n","category":"Kohteen tiedot"}},"zoningDetails":{"fi":{"key":"Kaavoitustiedot","value":"Järvenpään kaupunki puhelin: 09-27191.\nhttps://www.jarvenpaa.fi/asuminen-ja-ymparisto/ maankaytto-ja-kaavoitus/asemakaavoitus","category":"Kohteen tiedot"}},"accessibleInfo":{"fi":{"key":"Lisätietoja liikuntarajoituksista","value":null,"category":"Kohteen tiedot"}},"asbestosSurvey":{"fi":{"key":"Asbestikartoitus tehty","value":"Ei","category":"Kohteen tiedot"}},"commissionType":{"fi":{"key":"Toimeksiantotyyppi","value":"Myyntitoimeksianto","category":"Kohteen tiedot"}},"deploymentYear":{"fi":{"key":"Käyttöönottovuosi","value":null,"category":"Kohteen tiedot"}},"kitchenWorkTop":{"fi":{"key":"Työtasot","value":"Laminaatti","category":"Kohteen tiedot"}},"lotRentEndDate":{"fi":{"key":"Tontin vuokra-aika päättyy","value":null,"category":"Kohteen tiedot"}},"mapCoordinates":{"fi":{"key":"Koordinaatit","value":"25.10198833186004, 60.4797684","category":"Kohteen tiedot"}},"plotRentCharge":{"fi":{"key":"Tontin vuokravastike","value":null,"category":"Kohteen tiedot"}},"rentUpdateDate":{"fi":{"key":"alkaen kuitenkin","value":null,"category":"Kohteen tiedot"}},"saunaStoveType":{"fi":{"key":"Varustus","value":"Puukiuas","category":"Kohteen tiedot"}},"smokingAllowed":{"fi":{"key":"Tupakointi sallittu","value":null,"category":"Kohteen tiedot"}},"sweepingCharge":{"fi":{"key":"Nuohous","value":null,"category":"Kohteen tiedot"}},"virtualShowing":{"fi":{"key":"Virtuaaliesittelyn linkki","value":null,"category":"Kohteen tiedot"}},"wcWallMaterial":{"fi":{"key":"WC-tilojen seinämateriaali","value":"Kaakeli","category":"Kohteen tiedot"}},"apartmentNumber":{"fi":{"key":"Huoneisto","value":null,"category":"Kohteen tiedot"}},"broadbandCharge":{"fi":{"key":"Laajakaistamaksu (€/kk)","value":null,"category":"Kohteen tiedot"}},"energyClassInfo":{"fi":{"key":"Lisätietoja energiatodistuksesta","value":null,"category":"Kohteen tiedot"}},"hasHighCeilings":{"fi":{"key":"Korkea huonekorkeus","value":"Ei","category":"Kohteen tiedot"}},"hasParkingSpace":{"fi":{"key":"Autopaikka","value":null,"category":"Kohteen tiedot"}},"hasSpecialTerms":{"fi":{"key":"Onko kohteella erityisiä ehtoja?","value":null,"category":"Kohteen tiedot"}},"otherSpacesInfo":{"fi":{"key":"Muiden tilojen kuvaus","value":null,"category":"Kohteen tiedot"}},"pastRenovations":{"fi":{"key":"Rakennukseen tehdyt korjaukset/remontit","value":null,"category":"Kohteen tiedot"}},"rentPaymentDate":{"fi":{"key":"Vuokranmaksupäivä","value":null,"category":"Kohteen tiedot"}},"roofingMaterial":{"fi":{"key":"Katemateriaali","value":"Tiili","category":"Kohteen tiedot"}},"typeOfApartment":{"fi":{"key":"Huoneistoselitelmä","value":"5-6h, k, ph, s, khh, pkh, 2*wc, vh, var, at, ak, 2*ulkovar.","category":"Kohteen tiedot"}},"wcFloorMaterial":{"fi":{"key":"WC-tilojen lattiamateriaali","value":"Laatta","category":"Kohteen tiedot"}},"firewoodIncluded":{"fi":{"key":"Polttopuut kuuluvat kauppaan","value":null,"category":"Kohteen tiedot"}},"kitchenEquipment":{"fi":{"key":"Keittiön varusteiden lisätiedot","value":"Jääkaappi (2 kpl), erillinen pakastin, liesituuletin, mikroaaltouuni, astianpesukone ja erillisuuni","category":"Kohteen tiedot"}},"lotShareRedeemed":{"fi":{"key":"Osuus tontista on lunastettu","value":null,"category":"Kohteen tiedot"}},"mandatoryCharges":{"fi":{"key":"Hoitovastike","value":null,"category":"Kohteen tiedot"}},"newlyConstructed":{"fi":{"key":"Uudiskohde","value":null,"category":"Kohteen tiedot"}},"parkingSpaceInfo":{"fi":{"key":"Lisätietoja huoneiston autopaikasta","value":null,"category":"Kohteen tiedot"}},"renovationCharge":{"fi":{"key":"Korjausvastike","value":null,"category":"Kohteen tiedot"}},"roofMaterialInfo":{"fi":{"key":"Kattomateriaalien kuvaus ja lisätiedot","value":null,"category":"Kohteen tiedot"}},"sanitationCharge":{"fi":{"key":"Puhtaanapito","value":"20 € / kk","category":"Kohteen tiedot"}},"saunaDescription":{"fi":{"key":"Saunan kuvaus ja lisätiedot","value":null,"category":"Kohteen tiedot"}},"wallMaterialInfo":{"fi":{"key":"Seinämateriaalien kuvaus ja lisätiedot","value":null,"category":"Kohteen tiedot"}},"bathroomEquipment":{"fi":{"key":"Pesuhuoneen varusteet","value":"Suihku (2 kpl)","category":"Kohteen tiedot"}},"constructionPhase":{"fi":{"key":"Rakennusvaihe","value":null,"category":"Kohteen tiedot"}},"contactInfoSource":{"fi":{"key":"Kohteen yhteydenotto lähde","value":"Välittäjä","category":"Kohteen tiedot"}},"floorMaterialInfo":{"fi":{"key":"Lattiamateriaalien kuvaus ja lisätiedot","value":null,"category":"Kohteen tiedot"}},"highestOfferPrice":{"fi":{"key":"Ostajan viimeisin velaton tarjoushinta","value":null,"category":"Kohteen tiedot"}},"laundryRoomCharge":{"fi":{"key":"Pesutupamaksu","value":null,"category":"Kohteen tiedot"}},"maintenanceCharge":{"fi":{"key":"Yhtiövastike yhteensä","value":null,"category":"Kohteen tiedot"}},"propertyBuildings":{"fi":{"key":"Muut rakennukset","value":null,"category":"Kohteen tiedot"}},"rentIncreaseBasis":{"fi":{"key":"Vuokrankorotusperuste","value":null,"category":"Kohteen tiedot"}},"saunaWallMaterial":{"fi":{"key":"Saunan seinämateriaali","value":"Lasiseinä, suolaseinä, sisustuskiviseinä ja paneeli","category":"Kohteen tiedot"}},"storageSpaceTypes":{"fi":{"key":"Kohteen säilytystilat","value":null,"category":"Kohteen tiedot"}},"subleasingDetails":{"fi":{"key":"Lisätietoja jälleenvuokrauksesta","value":null,"category":"Kohteen tiedot"}},"asbestosSurveyInfo":{"fi":{"key":"Lisätietoja asbestikartoituksesta","value":null,"category":"Kohteen tiedot"}},"bedroomDescription":{"fi":{"key":"Makuuhuoneen kuvaus","value":null,"category":"Kohteen tiedot"}},"conditionCheckDate":{"fi":{"key":"Kuntotarkastus tehty","value":null,"category":"Kohteen tiedot"}},"dealDoesNotInclude":{"fi":{"key":"Kauppaan ei kuulu","value":null,"category":"Kohteen tiedot"}},"debtlessStartPrice":{"fi":{"key":"Toimeksiantonumero","value":"1012","category":"Kohteen tiedot"}},"kitchenDescription":{"fi":{"key":"Keittiön kuvaus","value":null,"category":"Kohteen tiedot"}},"nonLocalizedValues":{"id":"c9afb10c-79ac-4081-a8ff-485a9ce4d169","area":"137","city":"Järvenpää","type":"PROPERTY","floor":"1","sauna":true,"status":"ON_SALE","address":"Vesitorninkatu 6","country":"FI","lotArea":"1160","terrace":true,"wcCount":"2","askPrice":"391000","inIsland":false,"province":"Uusimaa","condition":"GOOD","roomCount":5,"floorCount":null,"hasBalcony":false,"energyClass":"D2018","listingType":"DETACHEDHOUSE","lotAreaUnit":"SQUARE_METER","petsAllowed":false,"publishDate":"2026-01-13T16:56:03.399Z","salesMethod":"TRADITIONAL","bedroomCount":4,"lotOwnership":"OWN","municipality":"Järvenpää","productGroup":"APARTMENTS","propertyType":"PLOT","debtFreePrice":"391000","commissionType":"SELL","hasOpenKitchen":true,"saunaStoveType":["WOOD"],"smokingAllowed":false,"hasParkingSpace":false,"typeOfApartment":{"fi":"5-6h, k, ph, s, khh, pkh, 2*wc, vh, var, at, ak, 2*ulkovar."},"newlyConstructed":false,"waterPipeRenovationYear":null,"sewerSystemRenovationYear":null,"isElectricalSystemRenovated":null,"electricalSystemRenovationYear":null,"externalMigratedKiviRealtyUniqueNo":null},"parkingGarageCount":{"fi":{"key":"Autohallipaikkoja","value":null,"category":"Kohteen tiedot"}},"pipeRenovationYear":{"fi":{"key":"Putket remontoitu","value":null,"category":"Kohteen tiedot"}},"propertyHasAntenna":{"fi":{"key":"Kohteessa on antenni","value":"Kyllä","category":"Kohteen tiedot"}},"propertyIdentifier":{"fi":{"key":"Kiinteistötunnus","value":"186-6-659-10","category":"Kohteen tiedot"}},"rentalContractType":{"fi":{"key":"Vuokrasopimus on","value":null,"category":"Kohteen tiedot"}},"saunaFloorMaterial":{"fi":{"key":"Saunan lattiamateriaali","value":"Laatta","category":"Kohteen tiedot"}},"specifiedShareArea":{"fi":{"key":null,"value":null,"category":"Kohteen tiedot"}},"storageDescription":{"fi":{"key":"Lisätietoja säilytystiloista","value":"Vaatehuone, kaapistot, käyttöullakko, hirsimökki sekä pihavarasto.","category":"Kohteen tiedot"}},"trafficConnections":{"fi":{"key":"Liikenneyhteydet","value":"Bussipysäkki lähellä ja juna-asema lähellä","category":"Kohteen tiedot"}},"waterPipeRenovated":{"fi":{"key":"Käyttövesiputkiston uusimisvuosi","value":null,"category":"Kohteen tiedot"}},"balconyCompassPoint":{"fi":{"key":"Parvekkeen ilmansuunta","value":null,"category":"Kohteen tiedot"}},"bathroomDescription":{"fi":{"key":"Kylpyhuoneen kuvaus","value":null,"category":"Kohteen tiedot"}},"bedroomWallMaterial":{"fi":{"key":"Makuuhuoneen seinämateriaali","value":"Maali ja tapetti","category":"Kohteen tiedot"}},"businessPremiseArea":{"fi":{"key":"Toimitilojen pinta-ala","value":null,"category":"Kohteen tiedot"}},"electricHeatingType":{"fi":{"key":"Sähkölämmityksen tyyppi","value":null,"category":"Kohteen tiedot"}},"electricityContract":{"fi":{"key":"Sähkösopimus","value":null,"category":"Kohteen tiedot"}},"hasSatelliteAntenna":{"fi":{"key":"Kohteessa on satelliittiantenni","value":"Ei","category":"Kohteen tiedot"}},"kitchenWallMaterial":{"fi":{"key":"Keittiön seinämateriaali","value":"Maali","category":"Kohteen tiedot"}},"landRedemptionPrice":{"fi":{"key":"Tontin lunastushinta","value":null,"category":"Kohteen tiedot"}},"propertyMaintenance":{"fi":{"key":"Kiinteistönhoidosta vastaa","value":null,"category":"Kohteen tiedot"}},"propertyManagerCity":{"fi":{"key":"Isännöitsijän kaupunki","value":null,"category":"Kohteen tiedot"}},"propertyManagerName":{"fi":{"key":"Isännöitsijän nimi","value":null,"category":"Kohteen tiedot"}},"securityDepositType":{"fi":{"key":"Vakuus","value":null,"category":"Kohteen tiedot"}},"bathroomWallMaterial":{"fi":{"key":"Kylpyhuoneen seinämateriaali","value":null,"category":"Kohteen tiedot"}},"bedroomFloorMaterial":{"fi":{"key":"Makuuhuoneen lattiamateriaali","value":"Laminaatti","category":"Kohteen tiedot"}},"constructionMaterial":{"fi":{"key":"Rakennus- ja pintamateriaalit","value":"Puu ja tiili","category":"Kohteen tiedot"}},"constructionYearInfo":{"fi":{"key":"Lisätietoja rakennusvuodesta","value":"Talousrakennus rakennettu vuonna 2002. \nVarasto rakennettu vuonna 2016. ","category":"Kohteen tiedot"}},"kitchenFloorMaterial":{"fi":{"key":"Keittiön lattiamateriaali","value":"Laatta","category":"Kohteen tiedot"}},"modificationWorkInfo":{"fi":{"key":"Toimeksiantajan aikana kohteeseen tehdyt toimenpiteet sekä niiden ajankohta","value":"2024: Eteisen ilmalämpöpumppu uusittu. \n2020: Terassi uusittu ja laajennettu, ulkoporealtaan asennus, tiilikaton pesu ja pinnoitus. \n2019: Olohuoneen ja pukuhuoneen väliseinän rakentaminen, sauna sekä pesu- ja pukuhuone uusittu, olohuoneen ilmalämpöpumppu uusittu. \n2018: Autotallin maalaus ja kalustaminen keittiöksi, ilmalämpöpumpun hankinta. \n2017: Laajennusosan rakentaminen (vanha kuisti ja sisäänkäynti muutettu eteistilaksi, lämmin varasto muutettu asuinkäyttöön), yläpohjan lisäeristys 10 cm puhallusvillalla, laajennusosan ilmalämpöpumpun asennus, keittiökaappien ja koneiden uusinta, keittiön ja olohuoneen väliseinän poisto, takka uusittu, sähköasennusten tarkistus ja mm. termostaattien uusinta, ulkotolppien tiilipinnoitus, ulkoseinävalojen uusinta, vanhan puuvaraston peruskorjaus, molempien ulkovarastojen maalaus. \n2016: Uuden pihavaraston rakentaminen. \n2015: Makuuhuoneiden ja olohuoneen useimpien seinäpintojen uusinta. ","category":"Kohteen tiedot"}},"propertyManagerEmail":{"fi":{"key":"Isännöitsijän sähköposti","value":null,"category":"Kohteen tiedot"}},"propertyManagerPhone":{"fi":{"key":"Isännöitsijän puhelinnumero","value":null,"category":"Kohteen tiedot"}},"sewerSystemRenovated":{"fi":{"key":"Viemäriputkiston uusimisvuosi","value":null,"category":"Kohteen tiedot"}},"utilityRoomEquipment":{"fi":{"key":"Kodinhoitohuoneen varustus","value":"Pesukoneliitäntä, lattialämmitys, pöytätaso, tila pesutornille ja pyykkikaapit","category":"Kohteen tiedot"}},"waterAndSewageCharge":{"fi":{"key":"Vesi ja jätevesi","value":"20 € / kk","category":"Kohteen tiedot"}},"bathroomFloorMaterial":{"fi":{"key":"Kylpyhuoneen lattiamateriaali","value":"Laatta","category":"Kohteen tiedot"}},"constructionStartYear":{"fi":{"key":"Rakennusvuosi (alkanut)","value":null,"category":"Kohteen tiedot"}},"earliestTerminateDate":{"fi":{"key":"Irtisanottavissa aikaisintaan","value":null,"category":"Kohteen tiedot"}},"electricHeatingCharge":{"fi":{"key":"Lämmityskustannukset","value":"250 € / kk","category":"Kohteen tiedot"}},"electricPlanTransfers":{"fi":{"key":"Sähköliittymä siirtyy","value":"Kyllä","category":"Kohteen tiedot"}},"electricalConnections":{"fi":{"key":"Sähkö","value":null,"category":"Kohteen tiedot"}},"housingCooperativeHas":{"fi":{"key":"Taloyhtiössä on","value":null,"category":"Kohteen tiedot"}},"laundryRoomChargeType":{"fi":{"key":"Pesutupamaksun laskutustapa","value":null,"category":"Kohteen tiedot"}},"livingRoomDescription":{"fi":{"key":"Olohuoneen kuvaus","value":null,"category":"Kohteen tiedot"}},"networkConnectionType":{"fi":{"key":"Yhteystapa","value":null,"category":"Kohteen tiedot"}},"propertyBuildingsInfo":{"fi":{"key":"Lisätietoja muista rakennuksista","value":null,"category":"Kohteen tiedot"}},"propertyManagerOffice":{"fi":{"key":"Isännöitsijätoimisto","value":null,"category":"Kohteen tiedot"}},"rentalContractEndDate":{"fi":{"key":"Vuokrasuhteen päättymispäivä","value":null,"category":"Kohteen tiedot"}},"roadMaintenanceCharge":{"fi":{"key":"Tienhoito","value":null,"category":"Kohteen tiedot"}},"sellerAwareMoldDamage":{"fi":{"key":"Home / mikrobivaurio","value":"Ei","category":"Kohteen tiedot"}},"specifiedShareDetails":{"fi":{"key":"Lisätietoja määräalasta","value":null,"category":"Kohteen tiedot"}},"yardParkingSpaceCount":{"fi":{"key":"Piha-autopaikat","value":null,"category":"Kohteen tiedot"}},"connectedToDataNetwork":{"fi":{"key":"Kohde on liitetty tietoliikenneverkkoon","value":null,"category":"Kohteen tiedot"}},"housingCooperativeName":{"fi":{"key":"Taloyhtiön nimi","value":null,"category":"Kohteen tiedot"}},"livingRoomWallMaterial":{"fi":{"key":"Olohuoneen seinämateriaali","value":"Maali","category":"Kohteen tiedot"}},"otherChargeDescription":{"fi":{"key":"Lisätietoja vastikkeista","value":null,"category":"Kohteen tiedot"}},"partnerRedemptionRight":{"fi":{"key":"Lunastusoikeus osakkailla","value":null,"category":"Kohteen tiedot"}},"propertyBuildingRights":{"fi":{"key":"Rakennusoikeus kerros-m²","value":"290","category":"Kohteen tiedot"}},"sellerAwareWaterDamage":{"fi":{"key":"Vesivahinko","value":"Ei","category":"Kohteen tiedot"}},"tenantIsResponsibleFor":{"fi":{"key":"Vuokralainen vastaa piha-alueen","value":null,"category":"Kohteen tiedot"}},"trafficConnectionsInfo":{"fi":{"key":"Lisätietoja liikenneyhteyksistä","value":"Linja-autopysäkki: Helsingintie n. 180 m.\nJuna-asema n. 920 m. ","category":"Kohteen tiedot"}},"utilityRoomDescription":{"fi":{"key":"Kodinhoitohuoneen kuvaus","value":null,"category":"Kohteen tiedot"}},"housingCooperativeSauna":{"fi":{"key":"Taloyhtiössä sauna","value":null,"category":"Kohteen tiedot"}},"livingRoomFloorMaterial":{"fi":{"key":"Olohuoneen lattiamateriaali","value":"Laminaatti","category":"Kohteen tiedot"}},"propertyMaintenanceInfo":{"fi":{"key":"Lisätietoja kiinteistönhoidosta","value":null,"category":"Kohteen tiedot"}},"rentalContractStartDate":{"fi":{"key":"Vuokrasuhteen alkamispäivä","value":null,"category":"Kohteen tiedot"}},"utilityRoomWallMaterial":{"fi":{"key":"Kodinhoitohuoneen seinämateriaali","value":"Kaakeli","category":"Kohteen tiedot"}},"areaBasisControlMeasured":{"fi":{"key":"Pinta-ala on tarkistusmitattu","value":"Ei","category":"Kohteen tiedot"}},"constructionMaterialInfo":{"fi":{"key":"Lisätiedot rakennusmateriaaleista","value":null,"category":"Kohteen tiedot"}},"customRealtorCompanyName":{"fi":{"key":"Dixu & Välittäjä -kohteen myyjän yritys","value":null,"category":"Kohteen tiedot"}},"latestDepositPaymentDate":{"fi":{"key":"Vakuus maksettava viimeistään","value":null,"category":"Kohteen tiedot"}},"utilityRoomFloorMaterial":{"fi":{"key":"Kodinhoitohuoneen lattiamateriaali","value":"Laatta","category":"Kohteen tiedot"}},"averageTotalHeatingCharge":{"fi":{"key":"Sähkölämmityksen keskimääräinen kokonaiskustannus (€/kk)","value":null,"category":"Kohteen tiedot"}},"electricHeatingPowerUsage":{"fi":{"key":"Kokonaissähkön kulutustiedot (kWh / vuosi)","value":"18500","category":"Kohteen tiedot"}},"electricalSystemRenovated":{"fi":{"key":"Sähköjärjestelmä uusittu","value":null,"category":"Kohteen tiedot"}},"energyCertificateValidity":{"fi":{"key":"Energiatodistuksen voimassaoloaika","value":"23.03.2035","category":"Kohteen tiedot"}},"housingCooperativeRevenue":{"fi":{"key":"Taloyhtiön vuokratuotot","value":null,"category":"Kohteen tiedot"}},"humidityInvestigationDate":{"fi":{"key":"Kosteusmittaus tehty","value":null,"category":"Kohteen tiedot"}},"propertyManagerPostNumber":{"fi":{"key":"Isännöitsijän postinumero","value":null,"category":"Kohteen tiedot"}},"sellerAwareHumidityDamage":{"fi":{"key":"Kosteusvaurio","value":"Ei","category":"Kohteen tiedot"}},"conditionInvestigationDate":{"fi":{"key":"Kuntotutkimus tehty","value":null,"category":"Kohteen tiedot"}},"constructionFinalCheckYear":{"fi":{"key":"Loppukatselmusvuosi","value":"2001","category":"Kohteen tiedot"}},"housingCooperativeElevator":{"fi":{"key":"Hissi","value":null,"category":"Kohteen tiedot"}},"housingCooperativeMortgage":{"fi":{"key":"Taloyhtiön kiinnitykset","value":null,"category":"Kohteen tiedot"}},"importantInfoAffectingSale":{"fi":{"key":"Muut kaupan kannalta merkittävät tiedot","value":null,"category":"Kohteen tiedot"}},"propertyAntennaDescription":{"fi":{"key":"Antennin kuvaus","value":null,"category":"Kohteen tiedot"}},"propertyBuildingRightsInfo":{"fi":{"key":"Lisätietoja rakennusoikeudesta","value":"\n\n\n","category":"Kohteen tiedot"}},"listingHasEnergyCertificate":{"fi":{"key":"Onko kohteesta olemassa energiatodistusta?","value":"Kyllä","category":"Kohteen tiedot"}},"housingCooperativeBusinessId":{"fi":{"key":null,"value":null,"category":"Kohteen tiedot"}},"propertyManagerStreetAddress":{"fi":{"key":"Isännöitsijän osoite","value":null,"category":"Kohteen tiedot"}},"reportOnMaintenanceNeedsInfo":{"fi":{"key":"Lisätietoja kunnossapitotarveselvityksestä","value":null,"category":"Kohteen tiedot"}},"reportOnMaintenanceNeedsYear":{"fi":{"key":"Kunnossapitotarveselvitys tehty","value":null,"category":"Kohteen tiedot"}},"electricPlugParkingSpaceCount":{"fi":{"key":"Sähköpistokepaikkoja","value":null,"category":"Kohteen tiedot"}},"propertyBuildingRightsENumber":{"fi":{"key":"Rakennusoikeus e-luku","value":"0.25","category":"Kohteen tiedot"}},"sellerAwareMoldDamageLocation":{"fi":{"key":"Home / mikrobivaurio on tapahtunut","value":null,"category":"Kohteen tiedot"}},"housingCooperativeMortgageDate":{"fi":{"key":"Isännöitsijäntodistuksen päivämäärän mukainen","value":null,"category":"Kohteen tiedot"}},"propertyManagerCertificateDate":{"fi":{"key":"Isännöitsijäntodistuksen päivämäärä","value":null,"category":"Kohteen tiedot"}},"sellerAwareWaterDamageLocation":{"fi":{"key":"Vesivaurio on tapahtunut","value":null,"category":"Kohteen tiedot"}},"tenantHomeInsuranceRequirement":{"fi":{"key":"Vuokralaisen vastuu kotivakuutuksesta","value":null,"category":"Kohteen tiedot"}},"housingCooperativeParkingSpaces":{"fi":{"key":"Lisätietoja taloyhtiön autopaikoista","value":null,"category":"Kohteen tiedot"}},"housingCooperativeAdditionalInfo":{"fi":{"key":"Lisätietoja taloyhtiöstä","value":null,"category":"Kohteen tiedot"}},"housingCooperativeApartmentCount":{"fi":{"key":"Asuinhuoneistot","value":null,"category":"Kohteen tiedot"}},"housingCooperativeRedemptionRight":{"fi":{"key":"Lunastusoikeus yhtiöllä","value":null,"category":"Kohteen tiedot"}},"sellerAwareHumidityDamageLocation":{"fi":{"key":"Kosteusvaurio on tapahtunut","value":null,"category":"Kohteen tiedot"}},"failureOfReturnOfKeysPenaltyAmount":{"fi":{"key":"Mikäli vuokralainen ei palauta kaikkia saamiaan avaimia sekä teettämiään lisäavaimia, on vuokralainen velvollinen maksamaan sopimussakkoa","value":null,"category":"Kohteen tiedot"}},"housingCooperativeRetailSpaceCount":{"fi":{"key":"Liikehuoneistot","value":null,"category":"Kohteen tiedot"}},"canHousingCoopChargeExtraCompensation":{"fi":{"key":"Taloyhtiön hallitukselle on annettu valtuutus periä (tai olla perimättä) ylimääräisiä vastikkeita yhtiön taloudellisen aseman tai maksuvalmiuden sitä vaatiessa.","value":null,"category":"Kohteen tiedot"}},"drillingOtherThanFurnituresTilesSeams":{"fi":{"key":"Reikien poraaminen sallittu muihin kun kalustelevyihin, laattasaumoihin ja keittiön tai kylpyhuoneen laattoihin","value":null,"category":"Kohteen tiedot"}},"housingCooperativeUpcomingRenovations":{"fi":{"key":"Tiedossa olevat tulevat korjaukset/remontit","value":null,"category":"Kohteen tiedot"}},"propertyContainsBuildingsIncludedInDeal":{"fi":{"key":"Kiinteistöllä sijaitsee kauppaan kuuluvia muita rakennuksia","value":null,"category":"Kohteen tiedot"}},"tenantIsResponsibleForHeatingSystemCleanup":{"fi":{"key":"Vuokralainen vastaa kohteen lämmitysjärjestelmän ja ilmanvaihtokoneiden puhdistamisesta erillisen vuokranantajan toimittaman ohjeistuksen mukaisesti","value":null,"category":"Kohteen tiedot"}}}
Vesitorninkatu 6
Järvenpää
Jätä yhteydenottopyyntö kohteesta.
Täytä lomake, niin aloitamme keskustelun luottamuksellisesti ja ilman sitoumuksia.
Tee ostotarjous kohteesta.
Tarvitsemme sähköisen ostotarjouksen kirjaamiseksi seuraavat henkilö- ja tuntemistiedot.
Mikäli ostajia on enemmän kuin yksi, tarvitaan tiedot jokaisesta ostajasta.
Kiinnostako tämä kohde?
Ota yhteyttä tai jätä viesti

Merike Martikainen
Kiinteistönvälittäjä, LKV, LVV, KiAT
040 662 8525
merike.martikainen@mandana.fi
Lähetä viesti
040 662 8525


























