Kalevankatu 57
Hietalahti
,
Helsinki
485 000 €
Velaton hinta
485 000 €
Myyntihinta
75
m2
Asuinpinta-ala
Kerrostalo
Kohteen tyyppi
1960
Rakennusvuosi
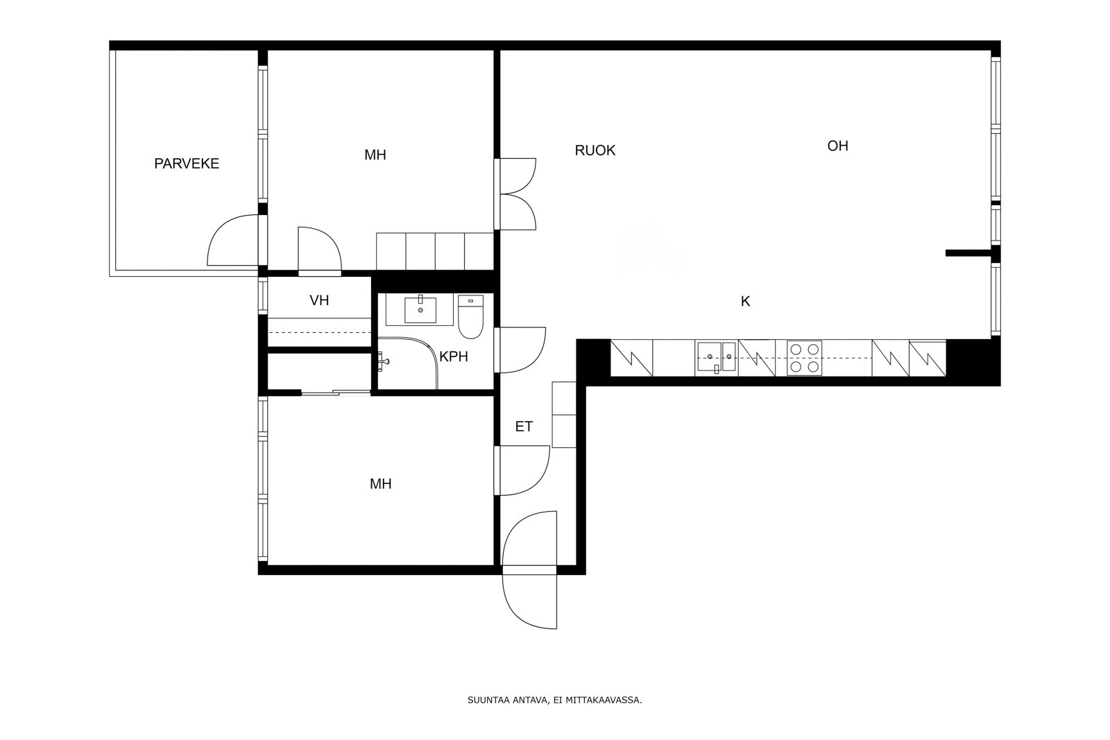
3h, avok, kph, vh, parveke
Tervetuloa tutustumaan tähän valoisaan ja toimivapohjaiseen ylimmän kerroksen asuntoon keskellä kaupunkia. Asunnon yhteydessä on mahdollisuus ostaa myös autohallipaikka, myyntihinta 40 000,00 euroa.
Asunnon sydän on tilava olohuoneen, ruokailutilan ja keittiön muodostama kokonaisuus, jossa on runsaasti tilaa sekä arkeen että yhdessäoloon. Keittiössä on moderni ilme ja hyvät työskentelysekä säilytystilat. Olohuoneesta avautuvat näkymät kadun puolelle, ja suuret ikkunat tuovat runsaasti luonnonvaloa.
Asunnossa on kaksi makuuhuonetta rauhalliselle sisäpihalle päin, joista toisen yhteydessä on vaatehuone ja käynti parvekkeelle. Parveke on tilava ja osittain suojaisa - mainio paikka nauttia aamukahvit tai kesäpäivän rauhasta kaupungin kattojen yllä.
Kylpyhuone on remontoitu vuonna 2002-2003 putkiremontin yhteydessä ja siinä on modernit, siistit pinnat sekä käytännöllinen suihkutila. Säilytystilaa on mukavasti, ja asunnossa on erillinen eteinen ja vaatehuoneen lisäksi huoneistokohtaiset varastot kellarikerroksessa.
Taloyhtiössä asukkaiden käytössä ovat saunaosasto, pesutupa ja ulkoiluvälinevarasto. Jokaiselle asunnolle kuuluu yhtiöjärjestyksen mukaan talouskellari ja säilytyskomero. Asunto sijaitsee hissillisessä talossa viidennessä (5/5) kerroksessa, ja rauhallinen sisäpihan ympäristö lisää viihtyvyyttä.
Asunto sijaitsee Hietalahdessa, Kalevankatu 57:ssä. Yhtiö on valinnaisella vuokratontilla, mutta tämän asunnon osalta tonttiosuus on lunastettu. Asuinalue tarjoaa urbaania elämää parhaimmillaan: lähikaupat, kahvilat, ravintolat ja Hietalahden kauppahalli ovat kävelyetäisyydellä, ja liikenneyhteydet ovat sujuvat niin julkisilla kuin omalla autollakin. Hietalahdenranta ja meren läheisyys tuovat oman lisänsä viihtyisään ja arvostettuun asuinympäristöön.
Tässä kodissa yhdistyvät toimivuus, valoisuus ja kaupungin syke - tervetuloa tutustumaan!
Kiinnostako tämä kohde?
Ota yhteyttä tai jätä viesti

Minna Uski
Kiinteistönvälittäjä, LKV, LVV, KIAT
044 328 6248
minna.uski@mandana.fi
Lähetä viesti
044 328 6248
{"id":{"fi":{"key":"Kohteen id","value":"697ad0b7-bea4-4e84-ae8b-61fe4cc4c11b","category":"Kohteen tiedot"}},"area":{"fi":{"key":"Asuinpinta-ala","value":"75 m²","category":"Kohteen tiedot"}},"city":{"fi":{"key":"Kaupunki","value":"Helsinki","category":"Kohteen tiedot"}},"debt":{"fi":{"key":"Velkaosuus","value":null,"category":"Kohteen tiedot"}},"gate":{"fi":{"key":"Rappu","value":"A","category":"Kohteen tiedot"}},"rent":{"fi":{"key":"Vuokra","value":null,"category":"Kohteen tiedot"}},"type":{"fi":{"key":"Tyyppi","value":"Asunto-osake","category":"Kohteen tiedot"}},"view":{"fi":{"key":"Näkymät huoneistosta","value":null,"category":"Kohteen tiedot"}},"yard":{"fi":{"key":"Piha","value":null,"category":"Kohteen tiedot"}},"beach":{"fi":{"key":"Ranta","value":null,"category":"Kohteen tiedot"}},"floor":{"fi":{"key":"Kerrosnumero","value":"5","category":"Kohteen tiedot"}},"links":{"fi":{"key":"Linkit","value":null,"category":"Kohteen tiedot"}},"sauna":{"fi":{"key":"Asunnossa sauna","value":"Ei","category":"Kohteen tiedot"}},"images":[],"roadTo":{"fi":{"key":"Tie perille","value":null,"category":"Kohteen tiedot"}},"status":{"fi":{"key":"Tila","value":"Myynnissä","category":"Kohteen tiedot"}},"address":{"fi":{"key":"Katuosoite","value":"Kalevankatu 57","category":"Kohteen tiedot"}},"country":{"fi":{"key":"Maa","value":"Suomi","category":"Kohteen tiedot"}},"lotArea":{"fi":{"key":"Tontin kokonaispinta-ala","value":"1 091,4 m²","category":"Kohteen tiedot"}},"lotInfo":{"fi":{"key":"Lisätietoja tontista","value":"Yhtiö sijaitsee valinnaisella vuokratontilla. Tämän huoneiston osalta tonttiosuus on lunastettu.\n\nYHTIÖJÄRJESTYS 6 §: \nYhtiö voi tonttia koskevan vuokrasopimuksen mukaisesti ostaa vuokra-alueena olevasta tontista murto-osia.\n\nKunkin osakehuoneiston osakkeenomistajalla on oikeus maksaa huoneistokohtainen osuus 3 §:ssä tarkoitetun tontin lunastushinnasta yhtiölle, jonka tulee tämän jälkeen seuraavana vuokrasopimuksen mukaisena mahdollisena ajankohtana hankkia vastaava murto-osa tontista.\n\nYhtiökokouskutsussa on tiedusteltava kaikilta yhtiössä asuinhuoneiston hallintaan oikeuttavien osakkeiden omistajilta, haluavatko nämä maksaa kokonaan huoneistokohtaisen osuutensa tontin lunastushinnasta, jolloin yhtiö tekee vastaavan lunastuksen yhtiön hallinnassa olevasta tontista vuokrasopimuksen mukaisesti.","category":"Kohteen tiedot"}},"lotType":{"fi":{"key":"Tontin tyyppi","value":null,"category":"Kohteen tiedot"}},"parking":{"fi":{"key":"Pysäköinti","value":null,"category":"Kohteen tiedot"}},"realtor":{"id":7057,"tel":null,"name":"Minna Uski","email":null,"avatar":null,"jobTitle":null,"primaryCompany":{"id":null,"tel":null,"logo":null,"name":null,"email":null,"address":null,"businessId":null,"postNumber":null,"postOffice":null}},"release":{"fi":{"key":"Kohde vapautuu","value":"Sopimuksen mukaan","category":"Kohteen tiedot"}},"schools":{"fi":{"key":"Koulut","value":null,"category":"Kohteen tiedot"}},"terrace":{"fi":{"key":"Terassi","value":null,"category":"Kohteen tiedot"}},"wcCount":{"fi":{"key":"WC-tilojen lukumäärä","value":null,"category":"Kohteen tiedot"}},"askPrice":{"fi":{"key":"Myyntihinta","value":"485 000 €","category":"Kohteen tiedot"}},"freeText":{"fi":{"key":null,"value":null,"category":null}},"inIsland":{"fi":{"key":"Kohde sijaitsee saaressa","value":null,"category":"Kohteen tiedot"}},"includes":{"fi":{"key":"Taloyhtiöön / Kiinteistöön kuuluu","value":"Yhtiön välittömään hallintaan jäävät kellarikerroksessa sijaitsevat seuraavat tilat:\n\nSaunaosasto 31 m²\nPesutupa 12 m²\nUlkoiluvälinevarasto nro 1 15 m²\nUlkoiluvälinevarasto nro 2 7 m²\nVäestösuoja 55 m²\nLämmönjakohuone 21 m²\nSähkökeskus 4 m²\nVarastotilaa 2 kpl yht. 11 m²","category":"Kohteen tiedot"}},"province":{"fi":{"key":"Maakunta","value":"Uusimaa","category":"Kohteen tiedot"}},"roadType":{"fi":{"key":"Tien tyyppi","value":null,"category":"Kohteen tiedot"}},"roofType":{"fi":{"key":"Kattotyyppi","value":"Harjakatto","category":"Kohteen tiedot"}},"services":{"fi":{"key":"Palvelut","value":"PALVELUT: Hietalahden alue tarjoaa laajan kattauksen päivittäisiä palveluita aivan kävelymatkan päässä. Lähistöllä sijaitsevat muun muassa S-market, Lidl ja KMarket. Alueelta löytyy myös erikoisliikkeitä, kahviloita ja ravintoloita joka makuun - muun muassa legendaarinen Hietalahden kauppahalli on vain muutaman korttelin päässä. Alueella toimii useita kivijalkamyymälöitä, kampaamoja, apteekkeja ja liikuntakeskuksia. Myös Kampin ja keskustan palvelut ovat nopeasti saavutettavissa.\n\nPÄIVÄKODIT JA KOULUT: Alueella on useita päiväkoteja, kuten Päiväkoti Hietalahti ja Päiväkoti Loru, sekä useita kunnallisia ja yksityisiä vaihtoehtoja hieman laajemmalla säteellä. Lähimmät peruskoulut ovat Helsingin Saksalainen koulu ja Ressun peruskoulu, ja myös lukioita ja muita oppilaitoksia on runsaasti lähistöllä. Keskustan monipuoliset koulutusmahdollisuudet ovat helposti saavutettavissa.\n\nLIIKENNEYHTEYDET: Kalevankatu 57:n sijainti tarjoaa hyvät liikenneyhteydet. Raitiovaunupysäkit ovat aivan kulman takana, ja bussiyhteydet kulkevat pitkin Lönnrotinkatua sekä Mechelininkatua. Kampin metroasema ja linja-autoasema sijaitsevat kävelyetäisyydellä, ja pyöräilijälle alue tarjoaa hyvät väylät ympäri kaupunkia. Myös autolla liikkuminen on vaivatonta - pääväylät ja tunneliyhteydet ovat lähellä.","category":"Kohteen tiedot"}},"videoUrl":{"fi":{"key":"Videon linkki","value":null,"category":"Kohteen tiedot"}},"areaBasis":{"fi":{"key":"Pinta-alan peruste","value":null,"category":"Kohteen tiedot"}},"beachInfo":{"fi":{"key":"Lisätietoja rannasta","value":null,"category":"Kohteen tiedot"}},"beachType":{"fi":{"key":"Rannan tyyppi","value":null,"category":"Kohteen tiedot"}},"condition":{"fi":{"key":"Kunto","value":"Hyvä","category":"Kohteen tiedot"}},"fireplace":{"fi":{"key":"Takkatiedot","value":null,"category":"Kohteen tiedot"}},"furnished":{"fi":{"key":"Kohde myydään kalustettuna","value":null,"category":"Kohteen tiedot"}},"localInfo":{"fi":{"key":"Lähipalvelut","value":null,"category":"Kohteen tiedot"}},"lotNumber":{"fi":{"key":"Tontin numero / Rnr","value":null,"category":"Kohteen tiedot"}},"otherArea":{"fi":{"key":"Muiden tilojen pinta-ala","value":"9 m²","category":"Kohteen tiedot"}},"roadTolls":{"fi":{"key":"Tiemaksut","value":null,"category":"Kohteen tiedot"}},"roomCount":{"fi":{"key":"Huoneluku","value":3,"category":"Kohteen tiedot"}},"sewerInfo":{"fi":{"key":"Lisätietoja viemäristä","value":null,"category":"Kohteen tiedot"}},"stoveType":{"fi":{"key":"Liesi","value":null,"category":"Kohteen tiedot"}},"chargeInfo":{"fi":{"key":"Lisätietoja maksuista","value":"Autopaikkavuokra (asukkaat): 100,00 € / hlö / kk\nAutopaikkavuokra (ulkopuoliset): 120,00 € / hlö / kk","category":"Kohteen tiedot"}},"floorCount":{"fi":{"key":"Kerroksia","value":"5","category":"Kohteen tiedot"}},"forestArea":{"fi":{"key":"Metsän pinta-ala","value":null,"category":"Kohteen tiedot"}},"freeOnText":{"fi":{"key":"Lisätietoja vapautumisesta","value":null,"category":"Kohteen tiedot"}},"hasBalcony":{"fi":{"key":"Parveke","value":"Kyllä","category":"Kohteen tiedot"}},"hasCableTv":{"fi":{"key":"Kohteessa on kaapeli-tv","value":"Kyllä","category":"Kohteen tiedot"}},"identifier":{"fi":{"key":"Kohdenumero","value":80477643,"category":"Kohteen tiedot"}},"landRenter":{"fi":{"key":"Maanvuokraaja","value":null,"category":"Kohteen tiedot"}},"postalCode":{"fi":{"key":"Postinumero","value":"00180","category":"Kohteen tiedot"}},"subleasing":{"fi":{"key":"Jälleenvuokraus","value":null,"category":"Kohteen tiedot"}},"zoningInfo":{"fi":{"key":"Lisätietoja kaavoituksesta","value":"Helsingin kaupunki asemakaavoitus\nKansakoulukatu 3, 00100 Helsinki\np. 09 310 1691 / https://kartta.hel.fi/","category":"Kohteen tiedot"}},"balconyArea":{"fi":{"key":"Parvekkeen (tai parvekkeiden) kokonaispinta-ala","value":null,"category":"Kohteen tiedot"}},"bodyOfWater":{"fi":{"key":"Vesistön nimi","value":null,"category":"Kohteen tiedot"}},"energyClass":{"fi":{"key":"Energialuokka","value":"F2018","category":"Kohteen tiedot"}},"garageCount":{"fi":{"key":"Autotalleja","value":"6 kpl","category":"Kohteen tiedot"}},"listingType":{"fi":{"key":"Kohteen tyyppi","value":"Kerrostalo","category":"Kohteen tiedot"}},"otherCharge":{"fi":{"key":"Muu vastike","value":null,"category":"Kohteen tiedot"}},"overallArea":{"fi":{"key":"Kokonaispinta-ala","value":"84 m²","category":"Kohteen tiedot"}},"parkingInfo":{"fi":{"key":"Lisätietoja paikoituksesta alueella (esim. asukaspysäköinti)","value":null,"category":"Kohteen tiedot"}},"petsAllowed":{"fi":{"key":"Lemmikit sallittu","value":null,"category":"Kohteen tiedot"}},"propertyTax":{"fi":{"key":"Kiinteistövero","value":null,"category":"Kohteen tiedot"}},"publishDate":{"fi":{"key":"Julkaisupäivä","value":"11.01.2026","category":"Kohteen tiedot"}},"realtorName":"Minna Uski","salesMethod":{"fi":{"key":"Kauppatapa","value":"Perinteinen","category":"Kohteen tiedot"}},"saunaCharge":{"fi":{"key":"Saunamaksu","value":"20 € kuukaudessa","category":"Kohteen tiedot"}},"terraceInfo":{"fi":{"key":"Lisätietoja terassista","value":null,"category":"Kohteen tiedot"}},"waterCharge":{"fi":{"key":"Vesimaksu","value":"22 € / hlö / kk","category":"Kohteen tiedot"}},"wcEquipment":{"fi":{"key":"Erillinen WC:n varusteiden lisätiedot","value":null,"category":"Kohteen tiedot"}},"windowTypes":{"fi":{"key":"Ikkunat","value":null,"category":"Kohteen tiedot"}},"__IMTINDEX__":null,"areaMoreInfo":{"fi":{"key":"Lisätietoja pinta-alasta","value":"Yhtiöjärjestyksen mukaan 75 m² +parv. 9 m². Pinta-alaa ei ole tarkistusmitattu.\n\nEdellä mainitut pinta-alat saattavat tämän ikäisessä kohteessa poiketa olennaisestikin asuinrakennusten nykyisten mittaustapojen ja standardien mukaan laskettavasta asuintilojen pinta-alasta. Asuinrakennuksen todellinen asuinpinta-ala voi siis olla esitteessä mainittua pienempi tai suurempi. Ainoa tapa varmistua todellisista pinta-aloista on teettää pinta-alojen tarkistusmittaus. Kohteen hinta ei määräydy pinta-alan perusteella.","category":"Kohteen tiedot"}},"balconyTypes":{"fi":{"key":"Parvekkeen tyyppi","value":"Ulostyönnetty","category":"Kohteen tiedot"}},"bedroomCount":{"fi":{"key":"Makuuhuoneiden lukumäärä","value":2,"category":"Kohteen tiedot"}},"carPortCount":{"fi":{"key":"Autokatokset","value":null,"category":"Kohteen tiedot"}},"completeYear":{"fi":{"key":"Valmistumisvuosi","value":"1960","category":"Kohteen tiedot"}},"dealIncludes":{"fi":{"key":"Kauppaan kuuluu","value":null,"category":"Kohteen tiedot"}},"districtFree":{"fi":{"key":"Kaupunginosa/kylä","value":"Hietalahti","category":"Kohteen tiedot"}},"kindergarten":{"fi":{"key":"Päiväkoti","value":null,"category":"Kohteen tiedot"}},"landCadastre":{"fi":{"key":"Maakatastri","value":null,"category":"Kohteen tiedot"}},"landYearRent":{"fi":{"key":"Tontin vuosivuokra","value":null,"category":"Kohteen tiedot"}},"lotOwnership":{"fi":{"key":"Tontin omistus","value":"Oma","category":"Kohteen tiedot"}},"lotSalesType":{"fi":{"key":"Tontin myyntityyppi","value":null,"category":"Kohteen tiedot"}},"municipality":{"fi":{"key":"Kunta/kaupunki","value":"Helsinki","category":"Kohteen tiedot"}},"ownBeachLine":{"fi":{"key":"Omaa rantaa","value":null,"category":"Kohteen tiedot"}},"parkingSpace":{"fi":{"key":"Huoneistoon kuuluu yhtiöjärjestyksen mukaan autopaikka","value":null,"category":"Kohteen tiedot"}},"productGroup":{"fi":{"key":"Tuoteryhmä internetissä","value":"Asunnot","category":"Kohteen tiedot"}},"propertyName":{"fi":{"key":"Kiinteistön nimi","value":null,"category":"Kohteen tiedot"}},"propertyType":{"fi":{"key":"Kiinteistön tyyppi","value":null,"category":"Kohteen tiedot"}},"restrictions":{"fi":{"key":"Muut käyttö-/luovutusrajoitukset (esim. vuokrausrajoitus, arava, hitasehto)","value":"Myytävä huoneisto - Yhtiöllä ei ole lunastusoikeutta. Osakkailla ei ole lunastusoikeutta.\n\nMuut rajoitukset - Lunastusoikeus varasto-, autotalli- ja autohalliosakkeisiin (Yhtiöjärjestys 18 §).","category":"Kohteen tiedot"}},"shareNumbers":{"fi":{"key":"Osakenumerot","value":"902-985","category":"Kohteen tiedot"}},"soldAsRented":{"fi":{"key":"Kohde myydään vuokrattuna","value":"Ei","category":"Kohteen tiedot"}},"swimmingPool":{"fi":{"key":"Uima-allas","value":null,"category":"Kohteen tiedot"}},"zoningStatus":{"fi":{"key":"Kaavoitus","value":"Asemakaava","category":"Kohteen tiedot"}},"__IMTLENGTH__":null,"conditionInfo":{"fi":{"key":"Lisätietoja kunnosta","value":null,"category":"Kohteen tiedot"}},"debtFreePrice":{"fi":{"key":"Velaton hinta","value":"485 000 €","category":"Kohteen tiedot"}},"freeTextTitle":{"fi":{"key":"Esittelytekstin otsikko","value":"Valoisa ja toimivapohjainen ylimmän kerroksen asunto, omalla tontilla!","category":"Kohteen tiedot"}},"fundingCharge":{"fi":{"key":"Rahoitusvastike","value":null,"category":"Kohteen tiedot"}},"heatingCharge":{"fi":{"key":"Lämmitys (€/kk)","value":null,"category":"Kohteen tiedot"}},"heatingSystem":{"fi":{"key":"Lämmitysjärjestelmä","value":"Kaukolämpö","category":"Kohteen tiedot"}},"housingTenure":{"fi":{"key":"Asumismuoto","value":null,"category":"Kohteen tiedot"}},"ownershipType":{"fi":{"key":"Omistusmuoto","value":"Oma","category":"Kohteen tiedot"}},"parkingCharge":{"fi":{"key":"Autopaikkamaksu","value":"100 € / kk","category":"Kohteen tiedot"}},"presentations":["{\"id\":\"5b0f7efb-7fd3-4967-b2b9-186bd08fd627\",\"date\":{\"fi\":\"11.01.2026\"},\"startTime\":{\"fi\":\"14.15\"},\"endTime\":{\"fi\":\"14.45\"},\"presenter\":{\"id\":7057,\"name\":\"Minna Uski\",\"email\":\"minna.uski@mandana.fi\",\"tel\":\"044 328 6248\"}}","{\"id\":\"7d9de892-1334-462c-9fd6-5806b3e561d1\",\"date\":{\"fi\":\"15.02.2026\"},\"startTime\":{\"fi\":\"14.00\"},\"endTime\":{\"fi\":\"14.30\"},\"presenter\":{\"id\":7057,\"name\":\"Minna Uski\",\"email\":\"minna.uski@mandana.fi\",\"tel\":\"044 328 6248\"}}","{\"id\":\"ac202e0b-680d-41c8-b43f-ff9f632ab224\",\"date\":{\"fi\":\"01.02.2026\"},\"startTime\":{\"fi\":\"13.00\"},\"endTime\":{\"fi\":\"13.30\"},\"presenter\":{\"id\":7057,\"name\":\"Minna Uski\",\"email\":\"minna.uski@mandana.fi\",\"tel\":\"044 328 6248\"}}","{\"id\":\"c9795103-b328-4e16-9315-598615425f68\",\"date\":{\"fi\":\"01.03.2026\"},\"startTime\":{\"fi\":\"14.00\"},\"endTime\":{\"fi\":\"14.30\"},\"presenter\":{\"id\":7057,\"name\":\"Minna Uski\",\"email\":\"minna.uski@mandana.fi\",\"tel\":\"044 328 6248\"}}"],"roadCondition":{"fi":{"key":"Tien kunto","value":null,"category":"Kohteen tiedot"}},"roofCondition":{"fi":{"key":"Katon kunto","value":null,"category":"Kohteen tiedot"}},"runningNumber":{"fi":{"key":"Toimeksiantonumero","value":"1008","category":"Kohteen tiedot"}},"waterPipeInfo":{"fi":{"key":"Lisätietoja vesijohdosta","value":null,"category":"Kohteen tiedot"}},"wcDescription":{"fi":{"key":"WC:n kuvaus","value":null,"category":"Kohteen tiedot"}},"zoningDetails":{"fi":{"key":"Kaavoitustiedot","value":null,"category":"Kohteen tiedot"}},"accessibleInfo":{"fi":{"key":"Lisätietoja liikuntarajoituksista","value":null,"category":"Kohteen tiedot"}},"asbestosSurvey":{"fi":{"key":"Asbestikartoitus tehty","value":"Ei","category":"Kohteen tiedot"}},"commissionType":{"fi":{"key":"Toimeksiantotyyppi","value":"Myyntitoimeksianto","category":"Kohteen tiedot"}},"deploymentYear":{"fi":{"key":"Käyttöönottovuosi","value":"1960","category":"Kohteen tiedot"}},"kitchenWorkTop":{"fi":{"key":"Työtasot","value":null,"category":"Kohteen tiedot"}},"lotRentEndDate":{"fi":{"key":"Tontin vuokra-aika päättyy","value":null,"category":"Kohteen tiedot"}},"mapCoordinates":{"fi":{"key":"Koordinaatit","value":"24.9261289, 60.1632597","category":"Kohteen tiedot"}},"plotRentCharge":{"fi":{"key":"Tontin vuokravastike","value":null,"category":"Kohteen tiedot"}},"rentUpdateDate":{"fi":{"key":"alkaen kuitenkin","value":null,"category":"Kohteen tiedot"}},"saunaStoveType":{"fi":{"key":"Varustus","value":null,"category":"Kohteen tiedot"}},"smokingAllowed":{"fi":{"key":"Tupakointi sallittu","value":null,"category":"Kohteen tiedot"}},"sweepingCharge":{"fi":{"key":"Nuohous","value":null,"category":"Kohteen tiedot"}},"virtualShowing":{"fi":{"key":"Virtuaaliesittelyn linkki","value":null,"category":"Kohteen tiedot"}},"wcWallMaterial":{"fi":{"key":"WC-tilojen seinämateriaali","value":null,"category":"Kohteen tiedot"}},"apartmentNumber":{"fi":{"key":"Huoneisto","value":"20","category":"Kohteen tiedot"}},"broadbandCharge":{"fi":{"key":"Laajakaistamaksu (€/kk)","value":null,"category":"Kohteen tiedot"}},"energyClassInfo":{"fi":{"key":"Lisätietoja energiatodistuksesta","value":null,"category":"Kohteen tiedot"}},"hasHighCeilings":{"fi":{"key":"Korkea huonekorkeus","value":null,"category":"Kohteen tiedot"}},"hasParkingSpace":{"fi":{"key":"Autopaikka","value":null,"category":"Kohteen tiedot"}},"hasSpecialTerms":{"fi":{"key":"Onko kohteella erityisiä ehtoja?","value":null,"category":"Kohteen tiedot"}},"otherSpacesInfo":{"fi":{"key":"Muiden tilojen kuvaus","value":"ETEINEN:\nVARUSTUS: Kaapisto.\nSEINÄT: Maali.\nLATTIA: Parketti.","category":"Kohteen tiedot"}},"pastRenovations":{"fi":{"key":"Rakennukseen tehdyt korjaukset/remontit","value":"Tilikaudella on tehty normaaleja huoltotoimenpiteitä sekä vahinkokorjauksia.\nAutohallin kaivonkaulusten ja kansien uusiminen tammikuussa 2025.\n\n2024: Kiinteiden ikkunapainikkeiden lisäys huoneistojen ikkunoihin.\n2022: Tonttivesijohdon uusiminen.\n2021: Sähköautojen latauksen selvitys. Märkätilojen kartoitus. Ikkunoiden puuosien huoltokäsittely. Lämmitysverkoston perussäätö ja patteriventtiilien uusiminen\n2020: Jäteastiasuojien hankinta.\n2016: IV-kanavien puhdistus ja suodatinvaihto.\n2015: Lämmönsiirtimen uusinta.\n2014-2015: Kadun puolen huoneistoikkunat, sisäpihan julkisivun vanhat huoneistoikkunat, porrashuoneiden ovet ja ikkunat kunnostettu.\n2006: Parvekkeiden rakentaminen sisäpihan puolelle.\n2002-2003: Putkiremontti ja ilmanvaihtoremontti.\n2000: Ikkunoiden kunnostaminen.\n1994: Pihakannen uusinta vesieristyksineen, autotallin ilmastointi.","category":"Kohteen tiedot"}},"rentPaymentDate":{"fi":{"key":"Vuokranmaksupäivä","value":null,"category":"Kohteen tiedot"}},"roofingMaterial":{"fi":{"key":"Katemateriaali","value":"Kupari","category":"Kohteen tiedot"}},"typeOfApartment":{"fi":{"key":"Huoneistoselitelmä","value":"3h, avok, kph, vh, parveke","category":"Kohteen tiedot"}},"wcFloorMaterial":{"fi":{"key":"WC-tilojen lattiamateriaali","value":null,"category":"Kohteen tiedot"}},"firewoodIncluded":{"fi":{"key":"Polttopuut kuuluvat kauppaan","value":null,"category":"Kohteen tiedot"}},"kitchenEquipment":{"fi":{"key":"Keittiön varusteiden lisätiedot","value":null,"category":"Kohteen tiedot"}},"lotShareRedeemed":{"fi":{"key":"Osuus tontista on lunastettu","value":null,"category":"Kohteen tiedot"}},"mandatoryCharges":{"fi":{"key":"Hoitovastike","value":"537,60 € / kk","category":"Kohteen tiedot"}},"newlyConstructed":{"fi":{"key":"Uudiskohde","value":null,"category":"Kohteen tiedot"}},"parkingSpaceInfo":{"fi":{"key":"Lisätietoja huoneiston autopaikasta","value":"Asunnon yhteydessä on mahdollisuus ostaa myös autohallipaikan nro 9 hallintaan oikeuttava osake, myyntihinta 40 000,00 euroa.","category":"Kohteen tiedot"}},"renovationCharge":{"fi":{"key":"Korjausvastike","value":null,"category":"Kohteen tiedot"}},"roofMaterialInfo":{"fi":{"key":"Kattomateriaalien kuvaus ja lisätiedot","value":null,"category":"Kohteen tiedot"}},"sanitationCharge":{"fi":{"key":"Puhtaanapito","value":null,"category":"Kohteen tiedot"}},"saunaDescription":{"fi":{"key":"Saunan kuvaus ja lisätiedot","value":null,"category":"Kohteen tiedot"}},"wallMaterialInfo":{"fi":{"key":"Seinämateriaalien kuvaus ja lisätiedot","value":null,"category":"Kohteen tiedot"}},"bathroomEquipment":{"fi":{"key":"Pesuhuoneen varusteet","value":null,"category":"Kohteen tiedot"}},"constructionPhase":{"fi":{"key":"Rakennusvaihe","value":null,"category":"Kohteen tiedot"}},"contactInfoSource":{"fi":{"key":"Kohteen yhteydenotto lähde","value":"Välittäjä","category":"Kohteen tiedot"}},"floorMaterialInfo":{"fi":{"key":"Lattiamateriaalien kuvaus ja lisätiedot","value":null,"category":"Kohteen tiedot"}},"highestOfferPrice":{"fi":{"key":"Ostajan viimeisin velaton tarjoushinta","value":null,"category":"Kohteen tiedot"}},"laundryRoomCharge":{"fi":{"key":"Pesutupamaksu","value":null,"category":"Kohteen tiedot"}},"maintenanceCharge":{"fi":{"key":"Yhtiövastike yhteensä","value":"537,60 € / kk","category":"Kohteen tiedot"}},"propertyBuildings":{"fi":{"key":"Muut rakennukset","value":null,"category":"Kohteen tiedot"}},"rentIncreaseBasis":{"fi":{"key":"Vuokrankorotusperuste","value":null,"category":"Kohteen tiedot"}},"saunaWallMaterial":{"fi":{"key":"Saunan seinämateriaali","value":null,"category":"Kohteen tiedot"}},"storageSpaceTypes":{"fi":{"key":"Kohteen säilytystilat","value":null,"category":"Kohteen tiedot"}},"subleasingDetails":{"fi":{"key":"Lisätietoja jälleenvuokrauksesta","value":null,"category":"Kohteen tiedot"}},"asbestosSurveyInfo":{"fi":{"key":"Lisätietoja asbestikartoituksesta","value":null,"category":"Kohteen tiedot"}},"bedroomDescription":{"fi":{"key":"Makuuhuoneen kuvaus","value":"MAKUUHUONE 1 - Makuuhuoneesta käynti tilavalle sisäpihan puoleiselle parvekkeelle. Makuuhuoneen yhteydessä vaatehuone.\nVARUSTUS: Kaapisto, ikkunoissa sälekaihtimet.\nSEINÄT: Maali.\nLATTIA: Parketti.\n\nMAKUUHUONE 2 -\nVARUSTUS: Liukuovikaapisto, ikkunoissa sälekaihtimet.\nSEINÄT: Maali.\nLATTIA: Parketti.","category":"Kohteen tiedot"}},"conditionCheckDate":{"fi":{"key":"Kuntotarkastus tehty","value":null,"category":"Kohteen tiedot"}},"dealDoesNotInclude":{"fi":{"key":"Kauppaan ei kuulu","value":null,"category":"Kohteen tiedot"}},"debtlessStartPrice":{"fi":{"key":"Toimeksiantonumero","value":"1008","category":"Kohteen tiedot"}},"kitchenDescription":{"fi":{"key":"Keittiön kuvaus","value":"VARUSTUS: Induktioliesi, liesituuletin, integroitu uuni, integroitu mikroaaltouuni, hana, kaapisto, pesuallas, integroitu astianpesukone, jääkaappipakastin, kiinteät valaisimet.\nSEINÄT: Maali.\nVÄLITILA: Lasi.\nLATTIA: Parketti.","category":"Kohteen tiedot"}},"nonLocalizedValues":{"id":"697ad0b7-bea4-4e84-ae8b-61fe4cc4c11b","area":"75","city":"Helsinki","type":"APARTMENT","floor":"5","sauna":false,"status":"ON_SALE","address":"Kalevankatu 57","country":"FI","lotArea":"1091.4","terrace":null,"wcCount":null,"askPrice":"485000","inIsland":false,"province":"Uusimaa","condition":"GOOD","roomCount":3,"floorCount":null,"hasBalcony":true,"energyClass":"F2018","listingType":"FLAT","lotAreaUnit":"SQUARE_METER","petsAllowed":false,"publishDate":"2026-01-11T07:00:08.282Z","salesMethod":"TRADITIONAL","bedroomCount":2,"lotOwnership":"OWN","municipality":"Helsinki","productGroup":"APARTMENTS","propertyType":null,"debtFreePrice":"485000","commissionType":"SELL","hasOpenKitchen":true,"saunaStoveType":[],"smokingAllowed":false,"hasParkingSpace":false,"typeOfApartment":{"fi":"3h, avok, kph, vh, parveke"},"newlyConstructed":false,"waterPipeRenovationYear":null,"sewerSystemRenovationYear":null,"isElectricalSystemRenovated":null,"electricalSystemRenovationYear":null,"externalMigratedKiviRealtyUniqueNo":null},"parkingGarageCount":{"fi":{"key":"Autohallipaikkoja","value":"25 kpl","category":"Kohteen tiedot"}},"pipeRenovationYear":{"fi":{"key":"Putket remontoitu","value":null,"category":"Kohteen tiedot"}},"propertyHasAntenna":{"fi":{"key":"Kohteessa on antenni","value":"Ei","category":"Kohteen tiedot"}},"propertyIdentifier":{"fi":{"key":"Kiinteistötunnus","value":"91-4-80-36","category":"Kohteen tiedot"}},"rentalContractType":{"fi":{"key":"Vuokrasopimus on","value":null,"category":"Kohteen tiedot"}},"saunaFloorMaterial":{"fi":{"key":"Saunan lattiamateriaali","value":null,"category":"Kohteen tiedot"}},"specifiedShareArea":{"fi":{"key":null,"value":null,"category":"Kohteen tiedot"}},"storageDescription":{"fi":{"key":"Lisätietoja säilytystiloista","value":"Asunnon yhteyteen kuuluu säilytyskomero vintillä, sekä pieni talouskellari kellarikerroksessa.","category":"Kohteen tiedot"}},"trafficConnections":{"fi":{"key":"Liikenneyhteydet","value":null,"category":"Kohteen tiedot"}},"waterPipeRenovated":{"fi":{"key":"Käyttövesiputkiston uusimisvuosi","value":null,"category":"Kohteen tiedot"}},"balconyCompassPoint":{"fi":{"key":"Parvekkeen ilmansuunta","value":null,"category":"Kohteen tiedot"}},"bathroomDescription":{"fi":{"key":"Kylpyhuoneen kuvaus","value":"VARUSTUS: Suihku, suihkuseinä, wc-istuin, hana, pesuallas, lattialämmitys, allaskaluste, peili, kiinteä valaisin.\nSEINÄT / LATTIA: Laatta.","category":"Kohteen tiedot"}},"bedroomWallMaterial":{"fi":{"key":"Makuuhuoneen seinämateriaali","value":null,"category":"Kohteen tiedot"}},"businessPremiseArea":{"fi":{"key":"Toimitilojen pinta-ala","value":null,"category":"Kohteen tiedot"}},"electricHeatingType":{"fi":{"key":"Sähkölämmityksen tyyppi","value":null,"category":"Kohteen tiedot"}},"electricityContract":{"fi":{"key":"Sähkösopimus","value":null,"category":"Kohteen tiedot"}},"hasSatelliteAntenna":{"fi":{"key":"Kohteessa on satelliittiantenni","value":"Ei","category":"Kohteen tiedot"}},"kitchenWallMaterial":{"fi":{"key":"Keittiön seinämateriaali","value":null,"category":"Kohteen tiedot"}},"landRedemptionPrice":{"fi":{"key":"Tontin lunastushinta","value":null,"category":"Kohteen tiedot"}},"propertyMaintenance":{"fi":{"key":"Kiinteistönhoidosta vastaa","value":"Huoltoyhtiö","category":"Kohteen tiedot"}},"propertyManagerCity":{"fi":{"key":"Isännöitsijän kaupunki","value":"Helsinki","category":"Kohteen tiedot"}},"propertyManagerName":{"fi":{"key":"Isännöitsijän nimi","value":"Danny Fallenius","category":"Kohteen tiedot"}},"securityDepositType":{"fi":{"key":"Vakuus","value":null,"category":"Kohteen tiedot"}},"bathroomWallMaterial":{"fi":{"key":"Kylpyhuoneen seinämateriaali","value":null,"category":"Kohteen tiedot"}},"bedroomFloorMaterial":{"fi":{"key":"Makuuhuoneen lattiamateriaali","value":null,"category":"Kohteen tiedot"}},"constructionMaterial":{"fi":{"key":"Rakennus- ja pintamateriaalit","value":"Tiili ja betoni","category":"Kohteen tiedot"}},"constructionYearInfo":{"fi":{"key":"Lisätietoja rakennusvuodesta","value":null,"category":"Kohteen tiedot"}},"kitchenFloorMaterial":{"fi":{"key":"Keittiön lattiamateriaali","value":null,"category":"Kohteen tiedot"}},"modificationWorkInfo":{"fi":{"key":"Toimeksiantajan aikana huoneistoon tehdyt toimenpiteet sekä niiden ajankohta","value":null,"category":"Kohteen tiedot"}},"propertyManagerEmail":{"fi":{"key":"Isännöitsijän sähköposti","value":"asiakaspalvelu@fallenius.fi","category":"Kohteen tiedot"}},"propertyManagerPhone":{"fi":{"key":"Isännöitsijän puhelinnumero","value":"050 321 8503","category":"Kohteen tiedot"}},"sewerSystemRenovated":{"fi":{"key":"Viemäriputkiston uusimisvuosi","value":null,"category":"Kohteen tiedot"}},"utilityRoomEquipment":{"fi":{"key":"Kodinhoitohuoneen varustus","value":null,"category":"Kohteen tiedot"}},"waterAndSewageCharge":{"fi":{"key":"Vesi ja jätevesi","value":null,"category":"Kohteen tiedot"}},"bathroomFloorMaterial":{"fi":{"key":"Kylpyhuoneen lattiamateriaali","value":null,"category":"Kohteen tiedot"}},"constructionStartYear":{"fi":{"key":"Rakennusvuosi (alkanut)","value":null,"category":"Kohteen tiedot"}},"earliestTerminateDate":{"fi":{"key":"Irtisanottavissa aikaisintaan","value":null,"category":"Kohteen tiedot"}},"electricHeatingCharge":{"fi":{"key":"Lämmityskustannukset","value":null,"category":"Kohteen tiedot"}},"electricPlanTransfers":{"fi":{"key":"Sähköliittymä siirtyy","value":null,"category":"Kohteen tiedot"}},"electricalConnections":{"fi":{"key":"Sähkö","value":null,"category":"Kohteen tiedot"}},"housingCooperativeHas":{"fi":{"key":"Taloyhtiössä on","value":null,"category":"Kohteen tiedot"}},"laundryRoomChargeType":{"fi":{"key":"Pesutupamaksun laskutustapa","value":null,"category":"Kohteen tiedot"}},"livingRoomDescription":{"fi":{"key":"Olohuoneen kuvaus","value":"VARUSTUS: Ikkunoissa sälekaihtimet.\nSEINÄT: Maali.\nLATTIA: Parketti.","category":"Kohteen tiedot"}},"networkConnectionType":{"fi":{"key":"Yhteystapa","value":"Taloyhtiölaajakaista","category":"Kohteen tiedot"}},"propertyBuildingsInfo":{"fi":{"key":"Lisätietoja muista rakennuksista","value":null,"category":"Kohteen tiedot"}},"propertyManagerOffice":{"fi":{"key":"Isännöitsijätoimisto","value":"Isännöitsijätoimisto Fallenius Oy","category":"Kohteen tiedot"}},"rentalContractEndDate":{"fi":{"key":"Vuokrasuhteen päättymispäivä","value":null,"category":"Kohteen tiedot"}},"roadMaintenanceCharge":{"fi":{"key":"Tienhoito","value":null,"category":"Kohteen tiedot"}},"sellerAwareMoldDamage":{"fi":{"key":"Home / mikrobivaurio","value":null,"category":"Kohteen tiedot"}},"specifiedShareDetails":{"fi":{"key":"Lisätietoja määräalasta","value":null,"category":"Kohteen tiedot"}},"yardParkingSpaceCount":{"fi":{"key":"Piha-autopaikat","value":"13 kpl","category":"Kohteen tiedot"}},"connectedToDataNetwork":{"fi":{"key":"Kohde on liitetty tietoliikenneverkkoon","value":"Kyllä","category":"Kohteen tiedot"}},"housingCooperativeName":{"fi":{"key":"Taloyhtiön nimi","value":"Asunto Oy Helsingin Kalevanranta","category":"Kohteen tiedot"}},"livingRoomWallMaterial":{"fi":{"key":"Olohuoneen seinämateriaali","value":null,"category":"Kohteen tiedot"}},"otherChargeDescription":{"fi":{"key":"Lisätietoja vastikkeista","value":"Varsinainen yhtiökokous 14.5.2025:\n- Valtuutettiin yksimielisesti hallitus perimään tarvittaessa 1-2 kuukauden ylimääräistä hoito- ja\npääomavastiketta vastaava määrä taloudellisen tilanteen niin vaatiessa.\n- Päätettiin, että lainanlyhennysrahastoa voidaan kartuttaa enintään lainojen lyhennysten ja / tai huoneistokohtaisten hankeosuussuoritusten määrää vastaavalla summalla.","category":"Kohteen tiedot"}},"partnerRedemptionRight":{"fi":{"key":"Lunastusoikeus osakkailla","value":"Ei","category":"Kohteen tiedot"}},"propertyBuildingRights":{"fi":{"key":"Rakennusoikeus kerros-m²","value":null,"category":"Kohteen tiedot"}},"sellerAwareWaterDamage":{"fi":{"key":"Vesivahinko","value":null,"category":"Kohteen tiedot"}},"tenantIsResponsibleFor":{"fi":{"key":"Vuokralainen vastaa piha-alueen","value":null,"category":"Kohteen tiedot"}},"trafficConnectionsInfo":{"fi":{"key":"Lisätietoja liikenneyhteyksistä","value":null,"category":"Kohteen tiedot"}},"utilityRoomDescription":{"fi":{"key":"Kodinhoitohuoneen kuvaus","value":null,"category":"Kohteen tiedot"}},"housingCooperativeSauna":{"fi":{"key":"Taloyhtiössä sauna","value":"Kyllä","category":"Kohteen tiedot"}},"livingRoomFloorMaterial":{"fi":{"key":"Olohuoneen lattiamateriaali","value":null,"category":"Kohteen tiedot"}},"propertyMaintenanceInfo":{"fi":{"key":"Lisätietoja kiinteistönhoidosta","value":"Kiinteistöpalvelu Rajala Oy","category":"Kohteen tiedot"}},"rentalContractStartDate":{"fi":{"key":"Vuokrasuhteen alkamispäivä","value":null,"category":"Kohteen tiedot"}},"utilityRoomWallMaterial":{"fi":{"key":"Kodinhoitohuoneen seinämateriaali","value":null,"category":"Kohteen tiedot"}},"areaBasisControlMeasured":{"fi":{"key":"Pinta-ala on tarkistusmitattu","value":null,"category":"Kohteen tiedot"}},"constructionMaterialInfo":{"fi":{"key":"Lisätiedot rakennusmateriaaleista","value":null,"category":"Kohteen tiedot"}},"customRealtorCompanyName":{"fi":{"key":"Dixu & Välittäjä -kohteen myyjän yritys","value":null,"category":"Kohteen tiedot"}},"latestDepositPaymentDate":{"fi":{"key":"Vakuus maksettava viimeistään","value":null,"category":"Kohteen tiedot"}},"utilityRoomFloorMaterial":{"fi":{"key":"Kodinhoitohuoneen lattiamateriaali","value":null,"category":"Kohteen tiedot"}},"averageTotalHeatingCharge":{"fi":{"key":"Sähkölämmityksen keskimääräinen kokonaiskustannus (€/kk)","value":null,"category":"Kohteen tiedot"}},"electricHeatingPowerUsage":{"fi":{"key":"Kokonaissähkön kulutustiedot (kWh / vuosi)","value":null,"category":"Kohteen tiedot"}},"electricalSystemRenovated":{"fi":{"key":"Sähköjärjestelmä uusittu","value":null,"category":"Kohteen tiedot"}},"energyCertificateValidity":{"fi":{"key":"Energiatodistuksen voimassaoloaika","value":"21.05.2033","category":"Kohteen tiedot"}},"housingCooperativeRevenue":{"fi":{"key":"Taloyhtiön vuokratuotot","value":null,"category":"Kohteen tiedot"}},"humidityInvestigationDate":{"fi":{"key":"Kosteusmittaus tehty","value":null,"category":"Kohteen tiedot"}},"propertyManagerPostNumber":{"fi":{"key":"Isännöitsijän postinumero","value":"00180","category":"Kohteen tiedot"}},"sellerAwareHumidityDamage":{"fi":{"key":"Kosteusvaurio","value":null,"category":"Kohteen tiedot"}},"conditionInvestigationDate":{"fi":{"key":"Kuntotutkimus tehty","value":null,"category":"Kohteen tiedot"}},"constructionFinalCheckYear":{"fi":{"key":"Loppukatselmusvuosi","value":null,"category":"Kohteen tiedot"}},"housingCooperativeElevator":{"fi":{"key":"Hissi","value":"Kyllä","category":"Kohteen tiedot"}},"housingCooperativeMortgage":{"fi":{"key":"Taloyhtiön kiinnitykset","value":"1 276 000 €","category":"Kohteen tiedot"}},"importantInfoAffectingSale":{"fi":{"key":"Muut kaupan kannalta merkittävät tiedot","value":null,"category":"Kohteen tiedot"}},"propertyAntennaDescription":{"fi":{"key":"Antennin kuvaus","value":null,"category":"Kohteen tiedot"}},"propertyBuildingRightsInfo":{"fi":{"key":"Lisätietoja rakennusoikeudesta","value":null,"category":"Kohteen tiedot"}},"listingHasEnergyCertificate":{"fi":{"key":"Onko kohteesta olemassa energiatodistusta?","value":"Kyllä","category":"Kohteen tiedot"}},"housingCooperativeBusinessId":{"fi":{"key":null,"value":"0201250-7","category":"Kohteen tiedot"}},"propertyManagerStreetAddress":{"fi":{"key":"Isännöitsijän osoite","value":"Lönnrotinkatu 39 D","category":"Kohteen tiedot"}},"reportOnMaintenanceNeedsInfo":{"fi":{"key":"Lisätietoja kunnossapitotarveselvityksestä","value":"Lukijan on huomattava, että kunnossapitotarveselvitys on hallituksen näkemys kunnossapitotarpeista viiden vuoden aikana. Päätökset mahdollisesti käynnistettävien kunnossapitotöiden ja muutostöiden suunnittelusta, toteutuksesta sekä rahoituksesta tehdään yhtiökokouksessa erikseen. Kunnossapitotarveselvityksessä mainitut toimenpiteet saattavat aikaistua tai myöhentyä. Myyjä ei vastaa taloyhtiön myöhemmin päättämistä kunnossapitotoimenpiteistä ja niistä aiheutuvista huoneistolle tulevista kustannuksista.","category":"Kohteen tiedot"}},"reportOnMaintenanceNeedsYear":{"fi":{"key":"Kunnossapitotarveselvitys tehty","value":null,"category":"Kohteen tiedot"}},"electricPlugParkingSpaceCount":{"fi":{"key":"Sähköpistokepaikkoja","value":null,"category":"Kohteen tiedot"}},"propertyBuildingRightsENumber":{"fi":{"key":"Rakennusoikeus e-luku","value":null,"category":"Kohteen tiedot"}},"sellerAwareMoldDamageLocation":{"fi":{"key":"Home / mikrobivaurio on tapahtunut","value":null,"category":"Kohteen tiedot"}},"housingCooperativeMortgageDate":{"fi":{"key":"Isännöitsijäntodistuksen päivämäärän mukainen","value":null,"category":"Kohteen tiedot"}},"propertyManagerCertificateDate":{"fi":{"key":"Isännöitsijäntodistuksen päivämäärä","value":"16.05.2025","category":"Kohteen tiedot"}},"sellerAwareWaterDamageLocation":{"fi":{"key":"Vesivaurio on tapahtunut","value":null,"category":"Kohteen tiedot"}},"tenantHomeInsuranceRequirement":{"fi":{"key":"Vuokralaisen vastuu kotivakuutuksesta","value":null,"category":"Kohteen tiedot"}},"housingCooperativeParkingSpaces":{"fi":{"key":"Lisätietoja taloyhtiön autopaikoista","value":"Yhtiön hallinnassa 13 kpl ulkoautopaikkaa. Autotallit ja hallipaikat ovat osakasomistuksessa.","category":"Kohteen tiedot"}},"housingCooperativeAdditionalInfo":{"fi":{"key":"Lisätietoja taloyhtiöstä","value":null,"category":"Kohteen tiedot"}},"housingCooperativeApartmentCount":{"fi":{"key":"Asuinhuoneistot","value":"40","category":"Kohteen tiedot"}},"housingCooperativeRedemptionRight":{"fi":{"key":"Lunastusoikeus yhtiöllä","value":"Ei","category":"Kohteen tiedot"}},"sellerAwareHumidityDamageLocation":{"fi":{"key":"Kosteusvaurio on tapahtunut","value":null,"category":"Kohteen tiedot"}},"failureOfReturnOfKeysPenaltyAmount":{"fi":{"key":"Mikäli vuokralainen ei palauta kaikkia saamiaan avaimia sekä teettämiään lisäavaimia, on vuokralainen velvollinen maksamaan sopimussakkoa","value":null,"category":"Kohteen tiedot"}},"housingCooperativeRetailSpaceCount":{"fi":{"key":"Liikehuoneistot","value":"1 kpl (42 m²)","category":"Kohteen tiedot"}},"canHousingCoopChargeExtraCompensation":{"fi":{"key":"Taloyhtiön hallitukselle on annettu valtuutus periä (tai olla perimättä) ylimääräisiä vastikkeita yhtiön taloudellisen aseman tai maksuvalmiuden sitä vaatiessa.","value":null,"category":"Kohteen tiedot"}},"drillingOtherThanFurnituresTilesSeams":{"fi":{"key":"Reikien poraaminen sallittu muihin kun kalustelevyihin, laattasaumoihin ja keittiön tai kylpyhuoneen laattoihin","value":null,"category":"Kohteen tiedot"}},"housingCooperativeUpcomingRenovations":{"fi":{"key":"Tiedossa olevat tulevat korjaukset/remontit","value":"2025\n- Yleisten tilojen / autotallissa olevien alkuperäisten vesi- ja viemäriputkien uusinta.\n- Autohallin kaivojen kaulusten ja kansien uusiminen.\n- Autohallin viemärien saneeraus sukittamalla.\n- Vanhojen vesijohtojen uusiminen autohalliin.\n- Tonttiviemärin sukitus.\n- Erottimen ja pienvesipumppaamon tarkistus ja mahdolliset korjaustoimenpiteet.\n- Palovaroittimien asentaminen asuinhuoneistoihin.\n\n2028-29\n- Kiinteistön puurakenteisten ikkunoiden huoltotyöt.\n- Ikkunoiden huoltokäsittely.","category":"Kohteen tiedot"}},"propertyContainsBuildingsIncludedInDeal":{"fi":{"key":"Kiinteistöllä sijaitsee kauppaan kuuluvia muita rakennuksia","value":null,"category":"Kohteen tiedot"}},"tenantIsResponsibleForHeatingSystemCleanup":{"fi":{"key":"Vuokralainen vastaa kohteen lämmitysjärjestelmän ja ilmanvaihtokoneiden puhdistamisesta erillisen vuokranantajan toimittaman ohjeistuksen mukaisesti","value":null,"category":"Kohteen tiedot"}}}
Kalevankatu 57
Helsinki
Jätä yhteydenottopyyntö kohteesta.
Täytä lomake, niin aloitamme keskustelun luottamuksellisesti ja ilman sitoumuksia.
Tee ostotarjous kohteesta.
Tarvitsemme sähköisen ostotarjouksen kirjaamiseksi seuraavat henkilö- ja tuntemistiedot.
Mikäli ostajia on enemmän kuin yksi, tarvitaan tiedot jokaisesta ostajasta.
Kiinnostako tämä kohde?
Ota yhteyttä tai jätä viesti

Minna Uski
Kiinteistönvälittäjä, LKV, LVV, KIAT
044 328 6248
minna.uski@mandana.fi
Lähetä viesti
044 328 6248
























